Plan No.657941
Expansive Living Areas
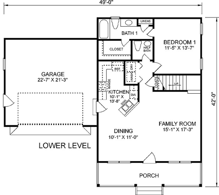
Ever feel the need to get away from it all? The romantic character of this home design could satisfy the requirements for your everyday retreat. A large front porch invites you to pause and enjoy the outdoors in the shade. Expansive main living areas, three bedrooms and two baths offer easy living for the whole family. This design also includes a two-car garage with an unfinished recreation room upstairs. In this design, it all adds up to style, comfort, and relaxation.
Specifications
Total 1497 sq ft
- Main: 936
- Second: 561
- Third: 0
- Loft/Bonus: 305
- Basement: 0
- Garage: 506
Rooms
- Beds: 3
- Baths: 2
- 1/2 Bath: 1
- 3/4 Bath: 0
Ceiling Height
- Main: 8'0
- Second: 8'0
- Third:
- Loft/Bonus:
- Basement:
- Garage:
Details
- Exterior Walls: 2x4
- Garage Type: doubleGarage
- Width: 49'0
- Depth: 42'0
Roof
- Max Ridge Height:
- Comments: ()
- Primary Pitch: 0/12
- Secondary Pitch: 0/12
Add to Cart
Pricing
– westhomeplanners.com
– westhomeplanners.com
– westhomeplanners.com
Elevations – westhomeplanners.com
[Back to Search Results]

833–493–0942


