Plan No.658602
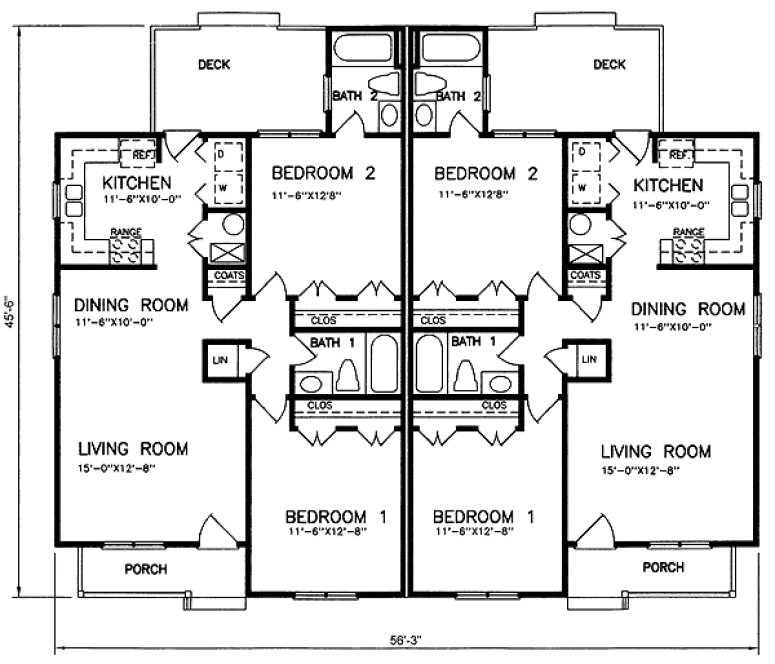
Heated Area: 1034 sq. ft. per unit. Total Heated Area: 2068 sq. ft. Porch & Deck: 172 sq. ft. per unit. Two Bedrooms and two Baths per unit.
Specifications
Total 2068 sq ft
- Main: 2068
- Second: 0
- Third: 0
- Loft/Bonus: 0
- Basement: 0
- Garage: 0
Rooms
- Beds: 4
- Baths: 4
- 1/2 Bath: 0
- 3/4 Bath: 0
Ceiling Height
- Main: 8'0
- Second:
- Third:
- Loft/Bonus:
- Basement:
- Garage:
Details
- Exterior Walls: 2x4
- Garage Type:
- Width: 57'0
- Depth: 46'0
Roof
- Max Ridge Height:
- Comments: ()
- Primary Pitch: 5/12
- Secondary Pitch: 0/12
Add to Cart
Pricing
– westhomeplanners.com
– westhomeplanners.com
– westhomeplanners.com
[Back to Search Results]

833–493–0942

