Plan No.211052
Décor Ceilings
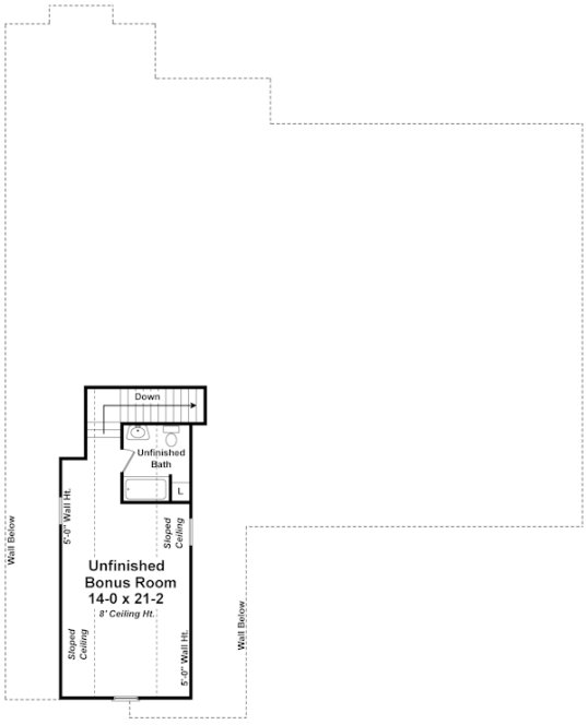
This beautiful design offers traditional neighborhood styling along with great floor plan features. The great room features trayed ceilings, built-in cabinets, and excellent views. A well-equipped kitchen offers easy access to the formal dining room as well as the casual breakfast area. The expansive and well-appointed master suite includes a trayed ceiling, his and hers walk-in closets, an oversized jet tub, separate shower, compartmentalized toilet and dual vanities. Two other bedrooms each have a walk-in closet and share a second bath. The bonus room provides a great space for a gameroom or home office and even has space for an optional bath. A large 2 car garage with separate storage is also provided. The functional floorplan and attractive exterior combine to make this a plan that you and your family can be proud to call home.
Specifications
Total 2501 sq ft
- Main: 2501
- Second: 0
- Third: 0
- Loft/Bonus: 433
- Basement: 0
- Garage: 908
Rooms
- Beds: 3
- Baths: 2
- 1/2 Bath: 1
- 3/4 Bath: 0
Ceiling Height
- Main: 9'0
- Second:
- Third:
- Loft/Bonus:
- Basement:
- Garage:
Details
- Exterior Walls: 2x6
- Garage Type: doubleGarage
- Width: 84'0
- Depth: 54'0
Roof
- Max Ridge Height: 25'11
- Comments: (Main Floor to Peak)
- Primary Pitch: 8/12
- Secondary Pitch: 14/12

833–493–0942


