Plan No.438941
Cute & Country
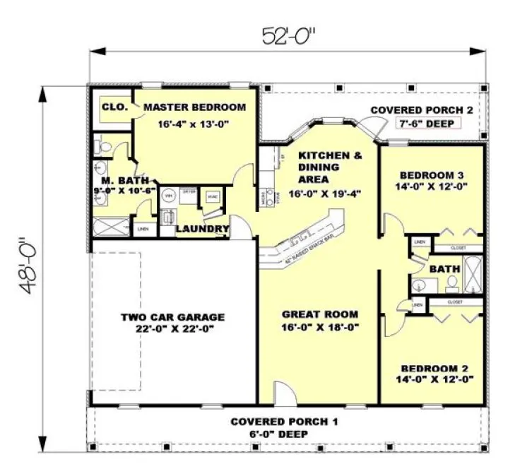
This adorable house is small, but it definitely has a WOW factor. A split bedroom layout ensures privacy, and two covered porches are great for entertaining. Enter the enormous Great Room to discover the "center" of the house is completely open. This feature makes this house feel larger than it is. The Kitchen/Dining is wide open with lots of cabinetry and a wonderful angled raised snack bar. The Dining area features a bay window. The Master Bedroom is huge with a nice walk-closet tucked in the back of the room. The Master Bath has dual sinks, linen closet, tub/shower combo and a separate toilet compartment for privacy. Bedrooms 2 and 3 are large with ample closets. They share a full bath with three separate entry accesses. The Laundry Room is conveniently located in between the Master Suite and the 2 car Garage.
Specifications
Total 1500 sq ft
- Main: 1500
- Second: 0
- Third: 0
- Loft/Bonus: 0
- Basement: 0
- Garage: 0
Rooms
- Beds: 3
- Baths: 2
- 1/2 Bath: 0
- 3/4 Bath: 0
Ceiling Height
- Main:
- Second:
- Third:
- Loft/Bonus:
- Basement:
- Garage:
Details
- Exterior Walls: 2x4
- Garage Type: doubleGarage
- Width: 52'0
- Depth: 48'0
Roof
- Max Ridge Height: 24'0
- Comments: (Main Floor to Peak)
- Primary Pitch: 7/12
- Secondary Pitch: 0/12

833–493–0942




