Plan No.217561
Your Family's Next Home
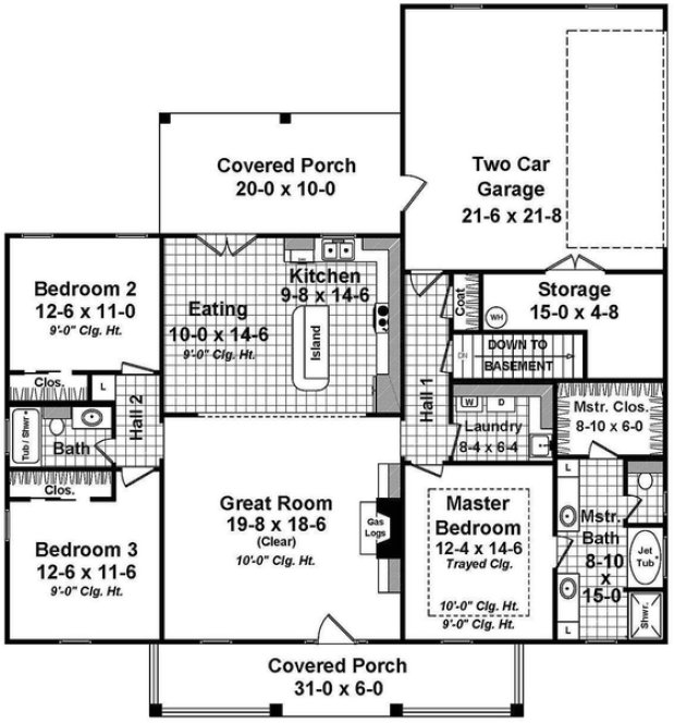
This well-designed plan provides an abundance of amenities for a minimal square footage. The master suite features a wonderful bathroom with large walk-in closet. The great room has gas logs as well as built-in cabinets and 10' ceiling that make it a great place to relax and spend time with family and friends. The rear covered porch provides a great space for those summer cookouts as well as being within close proximity to the well-equipped kitchen. The two car garage provides easy access to the rear porch and also includes a large storage space. Make this your family's next home! For similar plans see 218881, 213091 & 210022.
Specifications
Total 1657 sq ft
- Main: 1657
- Second: 0
- Third: 0
- Loft/Bonus: 0
- Basement: 0
- Garage: 486
Rooms
- Beds: 3
- Baths: 2
- 1/2 Bath: 0
- 3/4 Bath: 0
Ceiling Height
- Main: 9'0
- Second:
- Third:
- Loft/Bonus:
- Basement:
- Garage:
Details
- Exterior Walls: 2x4
- Garage Type: doubleGarage
- Width: 55'0
- Depth: 59'0
Roof
- Max Ridge Height: 23'9
- Comments: (Main Floor to Peak)
- Primary Pitch: 8/12
- Secondary Pitch: 4/12
Add to Cart
Pricing
– westhomeplanners.com
– westhomeplanners.com
Front Photo – westhomeplanners.com
Kitchen – westhomeplanners.com
– westhomeplanners.com
[Back to Search Results]

833–493–0942



