Plan No.532652
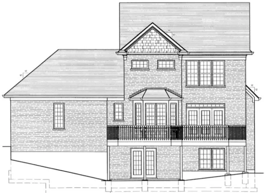
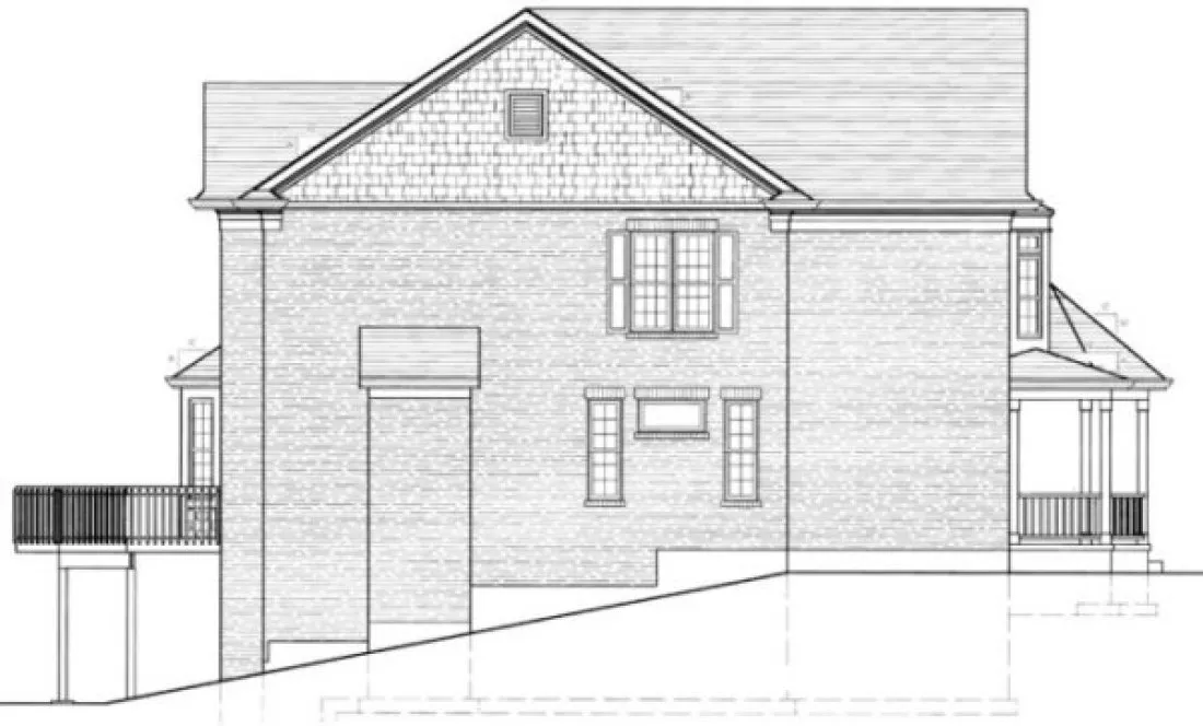
Enchanting Gazebo
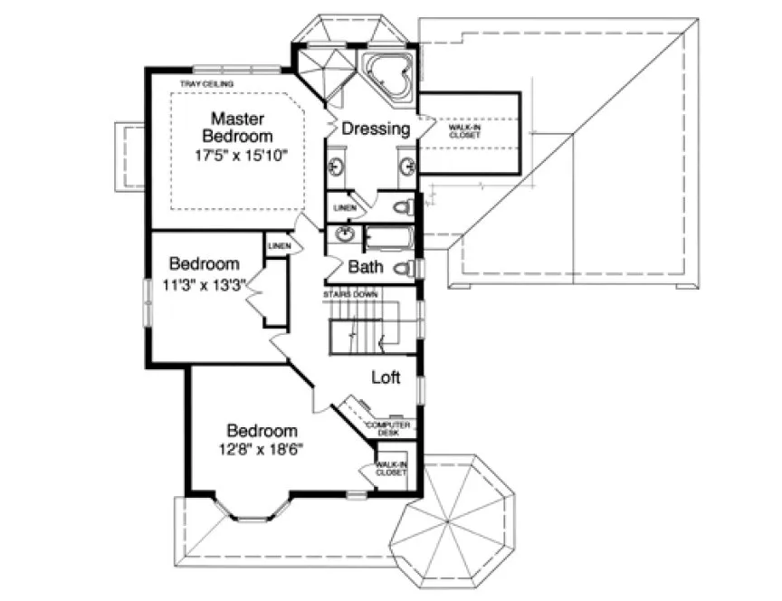
An enchanting gazebo decorates the porch of this wonderful two-story house creating a period home that blends well in an established neighborhood. The entry, adorned with beveled glass, introduces the formal area of the house for ultimate enjoyment. Split stairs trimmed with rich wood rails and a dropped soffit around the perimeter of the dining room add dimension and elegance. Warmed by a gas fireplace, the hearth room provides a comfortable family gathering place while an oversized island with seating defines the kitchen, and a bay window compliments the breakfast bay. Convenient to the kitchen, a spacious walk-in pantry and laundry room add order to the home. Overlooking the open staircase a loft provides a study area equipped with built in desk and shelves and leads to a deluxe master bedroom suite with tray ceiling, large walk-in closet and luxurious bath/dressing room. Two additional bedrooms with large closets complete this fully equipped home.
Specifications
Total 2562 sq ft
- Main: 1304
- Second: 1258
- Third: 0
- Loft/Bonus: 0
- Basement: 0
- Garage: 0
Rooms
- Beds: 3
- Baths: 2
- 1/2 Bath: 1
- 3/4 Bath: 0
Ceiling Height
- Main:
- Second:
- Third:
- Loft/Bonus:
- Basement:
- Garage:
Details
- Exterior Walls: 2x4
- Garage Type: doubleGarage
- Width: 56'6
- Depth: 56'9
Roof
- Max Ridge Height:
- Comments: ()
- Primary Pitch: 0/12
- Secondary Pitch: 0/12

833–493–0942




