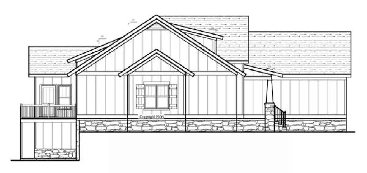
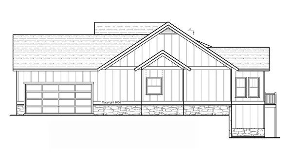
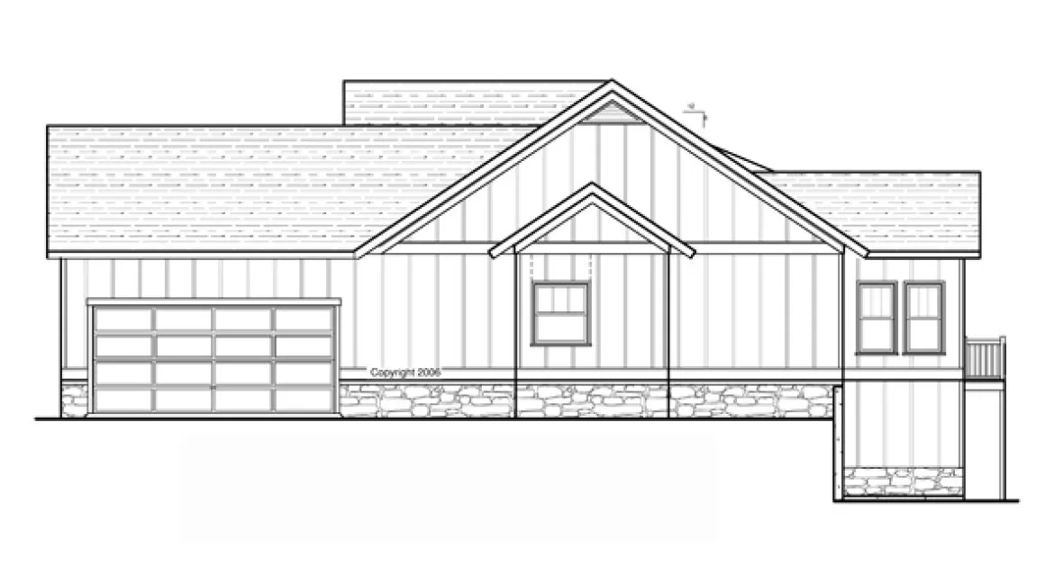
Plan No.121132
Specifications
Total 2311 sq ft
- Main: 2311
- Second: 0
- Third: 0
- Loft/Bonus: 216
- Basement: 0
- Garage: 576
Rooms
- Beds: 4
- Baths: 2
- 1/2 Bath: 1
- 3/4 Bath: 0
Ceiling Height
- Main: 9'0
- Second:
- Third:
- Loft/Bonus:
- Basement:
- Garage:
Details
- Exterior Walls: 2x4
- Garage Type: doubleGarage
- Width: 68'0
- Depth: 74'0
Roof
- Max Ridge Height: 21'10
- Comments: ()
- Primary Pitch: 7/12
- Secondary Pitch: 3/12
Add to Cart
Pricing
– westhomeplanners.com
– westhomeplanners.com
– westhomeplanners.com
– westhomeplanners.com
– westhomeplanners.com
– westhomeplanners.com
– westhomeplanners.com
– westhomeplanners.com
[Back to Search Results]

833–493–0942






