Plan No.222170
Just The Right Size
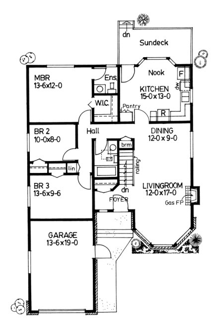
Consider this compact charmer for your next home...it is just the right size to make it an ideal starter or retirement house. A large foyer and wide-open formal area greets you upon entry, giving a roomy feeling to the home. Notice as well the spacious kitchen and nook area with access to a rear sundeck for outdoor dining.
Specifications
Total 1280 sq ft
- Main: 1280
- Second: 0
- Third: 0
- Loft/Bonus: 0
- Basement: 1270
- Garage: 257
Rooms
- Beds: 3
- Baths: 1
- 1/2 Bath: 1
- 3/4 Bath: 0
Ceiling Height
- Main: 8
- Second:
- Third:
- Loft/Bonus:
- Basement: 8
- Garage: 9'4
Details
- Exterior Walls: 2x6
- Garage Type: singleGarage
- Width: 36
- Depth: 54
Roof
- Max Ridge Height: 16'6
- Comments: ()
- Primary Pitch: 4/12
- Secondary Pitch: 0/12
Add to Cart
Pricing
– westhomeplanners.com
– westhomeplanners.com
[Back to Search Results]

833–493–0942
