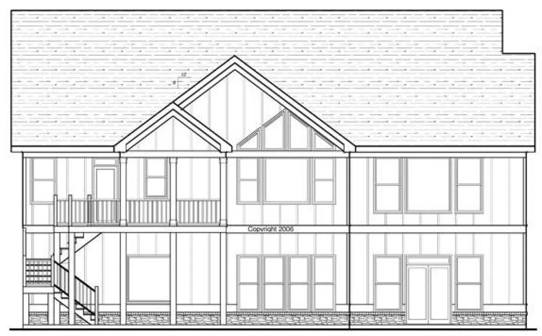
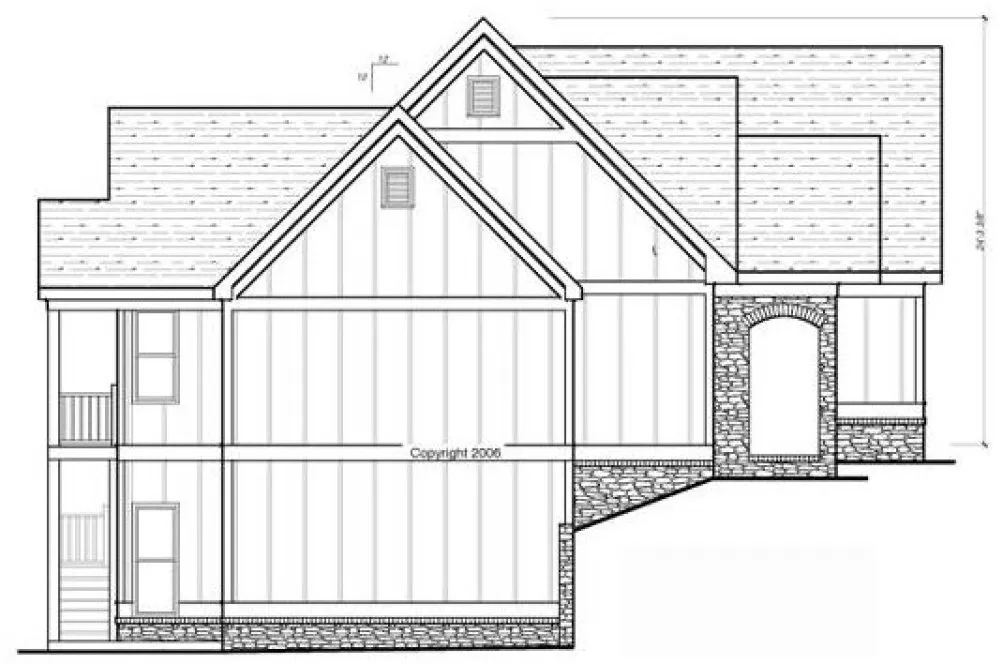
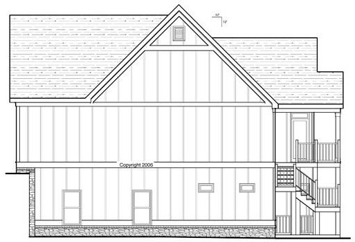
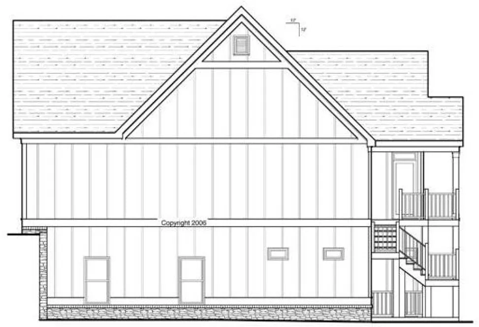
Plan No.121323
Specifications
Total 3231 sq ft
- Main: 1367
- Second: 0
- Third: 0
- Loft/Bonus: 0
- Basement: 1864
- Garage: 579
Rooms
- Beds: 4
- Baths: 3
- 1/2 Bath: 0
- 3/4 Bath: 0
Ceiling Height
- Main: 9'0
- Second:
- Third:
- Loft/Bonus:
- Basement: 8'0
- Garage:
Details
- Exterior Walls: 2x4
- Garage Type: doubleGarage
- Width: 57'0
- Depth: 50'0
Roof
- Max Ridge Height: 26'4
- Comments: (Main Floor to Peak)
- Primary Pitch: 12/12
- Secondary Pitch: 12/12
Add to Cart
Pricing
– westhomeplanners.com
– westhomeplanners.com
– westhomeplanners.com
Kitchen & Great Room – westhomeplanners.com
Stairs to Foyer – westhomeplanners.com
– westhomeplanners.com
– westhomeplanners.com
– westhomeplanners.com
[Back to Search Results]

833–493–0942






