Plan No.625422
Specifications
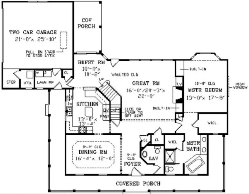
Total 2245 sq ft
- Main: 1720
- Second: 525
- Third: 0
- Loft/Bonus: 224
- Basement: 0
- Garage: 502
Rooms
- Beds: 3
- Baths: 2
- 1/2 Bath: 1
- 3/4 Bath: 0
Ceiling Height
- Main: 9'0
- Second: 8'0
- Third:
- Loft/Bonus:
- Basement:
- Garage:
Details
- Exterior Walls: 2x4
- Garage Type: doubleGarage
- Width: 68'0
- Depth: 57'6
Roof
- Max Ridge Height: 25'0
- Comments: ()
- Primary Pitch: 9/12
- Secondary Pitch: 0/12
Add to Cart
Pricing
– westhomeplanners.com
– westhomeplanners.com
– westhomeplanners.com
Front with Brick – westhomeplanners.com
Front Photo – westhomeplanners.com
Great Room – westhomeplanners.com
[Back to Search Results]

833–493–0942




