Plan No.189600
Practical and Stylish Plan
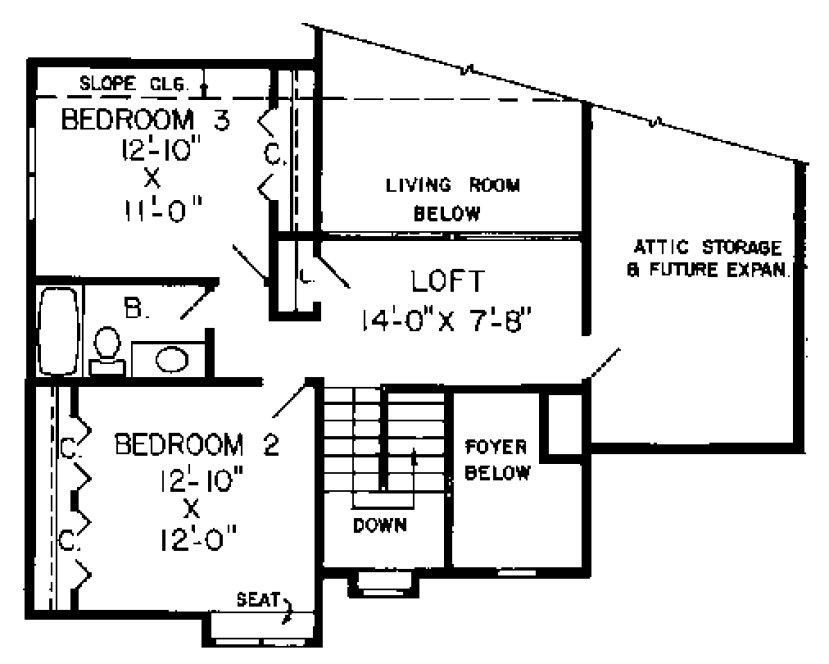
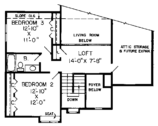
Make the most of daily life with a stylish yet practical plan. The kitchen contains a breakfast area large enough for most informal meals and easily accesses the dining and living rooms, as well as the deck. The spacious living room is a joy in either summer or winter thanks to the fireplace and broad views of the deck and backyard. All bedrooms have plenty of closet space, and you'll especially appreciate the attic storage. The bonus room adds 122 square feet. This home is designed with basement, slab, and crawlspace foundation options.
Specifications
Total 2007 sq ft
- Main: 1345
- Second: 662
- Third: 0
- Loft/Bonus: 0
- Basement: 1304
- Garage: 477
Rooms
- Beds: 3
- Baths: 2
- 1/2 Bath: 1
- 3/4 Bath: 0
Ceiling Height
- Main: 8'0
- Second: 8'0
- Third:
- Loft/Bonus:
- Basement:
- Garage: 9'4
Details
- Exterior Walls: 2x6
- Garage Type: doubleGarage
- Width: 48'0
- Depth: 48'0
Roof
- Max Ridge Height: 27'0
- Comments: (Main Floor to Peak)
- Primary Pitch: 7/12
- Secondary Pitch: 0/12
Add to Cart
Pricing
– westhomeplanners.com
– westhomeplanners.com
– westhomeplanners.com
Artist's Sketch – westhomeplanners.com
– westhomeplanners.com
[Back to Search Results]

833–493–0942



