Plan No.625051
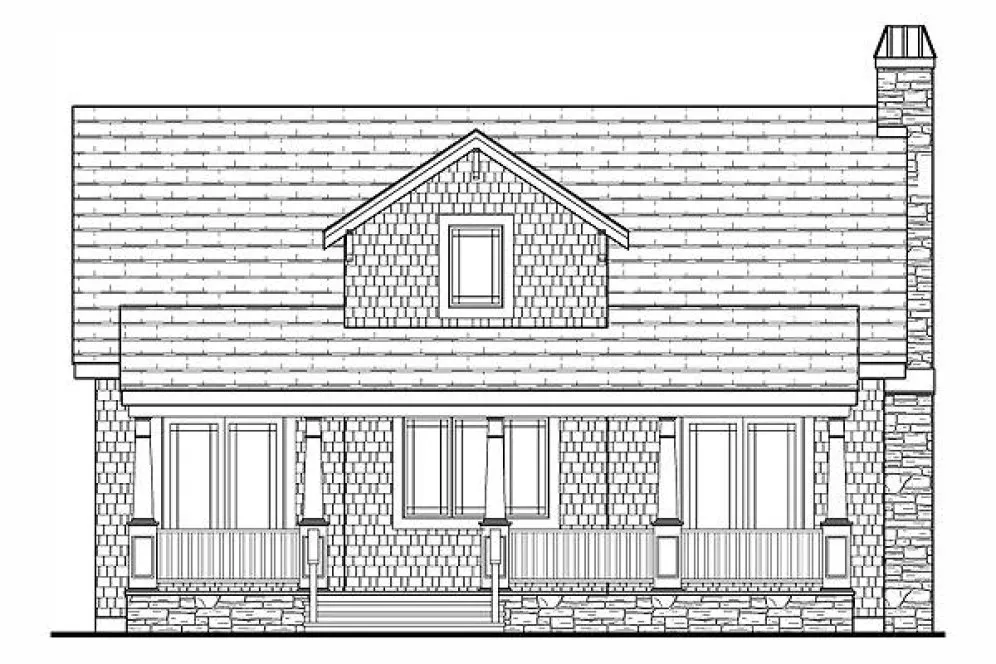
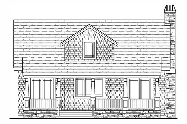
Craftsman Cottage
Rustic Charm permeates this lovely new home. Whether used year-round, or as a getaway place, it provides comfortable living in a modest, affordable size. Front and rear porches afford outdoor living on all sides. The simple layout is also very furnishable, a major asset in a modest home such as this. For photos of a built version of this plan, as well as an alternate walk-out basement see plan #622522.
Specifications
Total 1505 sq ft
- Main: 884
- Second: 621
- Third: 0
- Loft/Bonus: 0
- Basement: 0
- Garage: 0
Rooms
- Beds: 3
- Baths: 2
- 1/2 Bath: 1
- 3/4 Bath: 0
Ceiling Height
- Main: 9'0
- Second: 8'0
- Third:
- Loft/Bonus:
- Basement:
- Garage:
Details
- Exterior Walls: 2x4
- Garage Type:
- Width: 38'0
- Depth: 36'8
Roof
- Max Ridge Height: 25'0
- Comments: ()
- Primary Pitch: 12/12
- Secondary Pitch: 8/12
Add to Cart
Pricing
– westhomeplanners.com
– westhomeplanners.com
– westhomeplanners.com
– westhomeplanners.com
[Back to Search Results]

833–493–0942


