Plan No.314753
Packed With Character
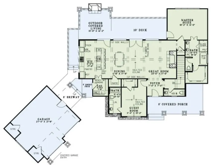
Packed with character, this rustic, yet elegant home features beautiful timber beams inside and out, and wooden columns on stone bases. With an inviting covered front porch, inside you?ll find a large Great Room with a vaulted ceiling of timer truss beams, with a large fireplace. The Great Room is open to the Dining Room and Kitchen. The kitchen features a large island bar and a walk-in pantry. With access from the Great Room and Kitchen, the outdoor living area with a fireplace is perfect for visiting or meals. The large master suite has a whirlpool tub, shower, walk-in closet, and private access to the deck. Off of the foyer is a Guest Room with a walk-in closet and a private bathroom. Downstairs is another Master Suite with the same amenities. And there?s a huge Media/Game Room with a fireplace, another bedroom, and a large Safe Room. A covered patio is off of the Media Room and is accessible from bedroom 2 and the 2nd Master Suite.
Specifications
Total 3574 sq ft
- Main: 3574
- Second: 0
- Third: 0
- Loft/Bonus: 0
- Basement: 1772
- Garage: 649
Rooms
- Beds: 4
- Baths: 4
- 1/2 Bath: 1
- 3/4 Bath: 0
Ceiling Height
- Main: 9'0
- Second:
- Third:
- Loft/Bonus:
- Basement: 9'0
- Garage:
Details
- Exterior Walls: 2x4
- Garage Type: doubleGarage
- Width: 93'6
- Depth: 70'9
Roof
- Max Ridge Height: 23'6
- Comments: ()
- Primary Pitch: 10/12
- Secondary Pitch: 4/12

833–493–0942



