Plan No.195372
Open Living Contemporary
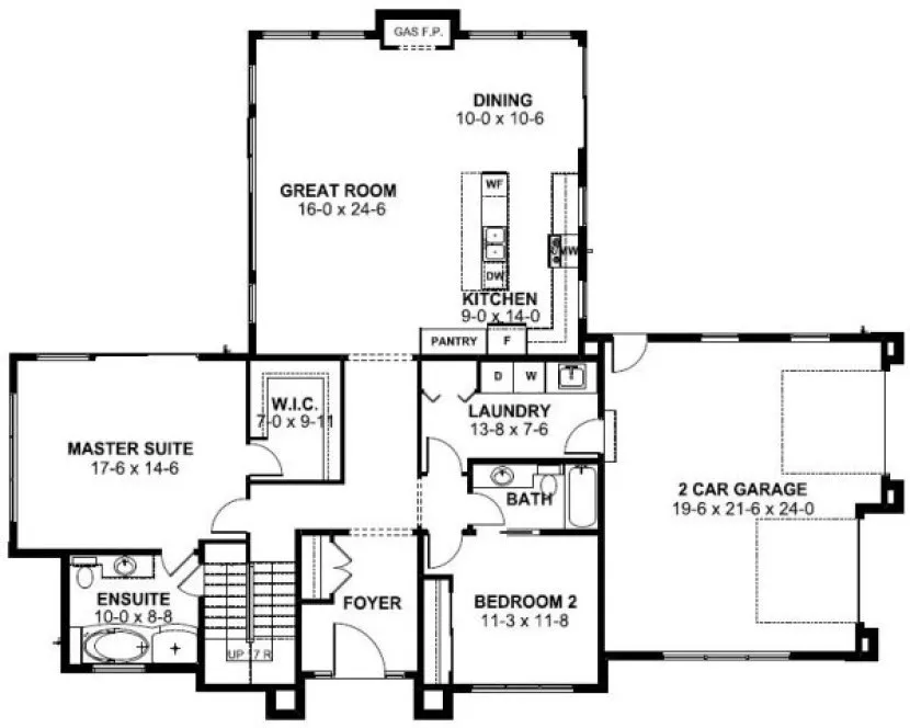
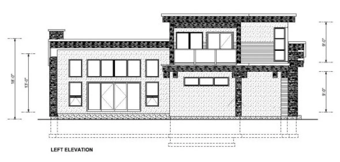
This beautiful contemporary home features a vaulted ceiling in the great room with large windows looking out to the rear patio. The spacious master suite features a large walk-in-closet and a beautiful ensuite bathroom. The large second storey covered deck flows from the bonus room making it perfect for relaxing or entertaining. The design is perfect for taking advantage of any views that you may have. 2X4 EXTERIOR WALLS AVAILABLE $100.00
Specifications
Total 2237 sq ft
- Main: 1779
- Second: 458
- Third: 0
- Loft/Bonus: 0
- Basement: 0
- Garage: 539
Rooms
- Beds: 3
- Baths: 3
- 1/2 Bath: 0
- 3/4 Bath: 0
Ceiling Height
- Main: 9'0
- Second: 9'0
- Third:
- Loft/Bonus:
- Basement:
- Garage:
Details
- Exterior Walls: 2x6
- Garage Type: doubleGarage
- Width: 69'0
- Depth: 54'6
Roof
- Max Ridge Height: 23'6
- Comments: ()
- Primary Pitch: 0/12
- Secondary Pitch: 2/12
Add to Cart
Pricing
– westhomeplanners.com
– westhomeplanners.com
– westhomeplanners.com
Front Rendering – westhomeplanners.com
– westhomeplanners.com
– westhomeplanners.com
– westhomeplanners.com
FRONT Elevation – westhomeplanners.com
[Back to Search Results]

833–493–0942






