Plan No.318241
Outdoor Fireplace
This rustic home blends brick, stone, shake siding, and timber columns for a striking exterior. The foyer leads you to the Great Room with its vaulted ceiling and fireplace. The perfect area for entertaining, your guests will enjoy the curved eat-at island bar of the kitchen. And open the French Doors of the Great Room to the Outdoor Living/Grilling Porch with a cozy fireplace of its own. The Master Suite offers an optional door to the porch and a huge walk-in closet. The bathroom features double vanities, a corner whirlpool tub, and a corner glass shower with seats to ensure relaxation.
Specifications
Total 2470 sq ft
- Main: 2470
- Second: 0
- Third: 0
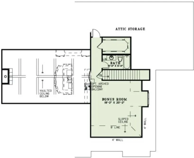
- Loft/Bonus: 602
- Basement: 0
- Garage: 1069
Rooms
- Beds: 4
- Baths: 3
- 1/2 Bath: 1
- 3/4 Bath: 0
Ceiling Height
- Main: 9'0
- Second:
- Third:
- Loft/Bonus: 8'0
- Basement:
- Garage:
Details
- Exterior Walls: 2x4
- Garage Type: tripleGarage
- Width: 85'6
- Depth: 61'3
Roof
- Max Ridge Height: 33'0
- Comments: ()
- Primary Pitch: 12/12
- Secondary Pitch: 0/12
Add to Cart
Pricing
– westhomeplanners.com
– westhomeplanners.com
– westhomeplanners.com
Front Photo – westhomeplanners.com
Front Porch – westhomeplanners.com
Foyer – westhomeplanners.com
Kitchen – westhomeplanners.com
Kitchen with 9' clg. – westhomeplanners.com
Kitchen & Hallway – westhomeplanners.com
Great Room w/ 9' clg. – westhomeplanners.com
Master Bath Tub – westhomeplanners.com
Master Ensuite – westhomeplanners.com
Kitchen from Great Rm – westhomeplanners.com
Stairs to Bonus Rm – westhomeplanners.com
Bonus Bedroom – westhomeplanners.com
Grt Rm w/Vaulted clg. – westhomeplanners.com
Kitchen w/Vaulted clg. – westhomeplanners.com
Elevations – westhomeplanners.com
[Back to Search Results]

833–493–0942
















