Plan No.195340
Prairie-Style Country Manor
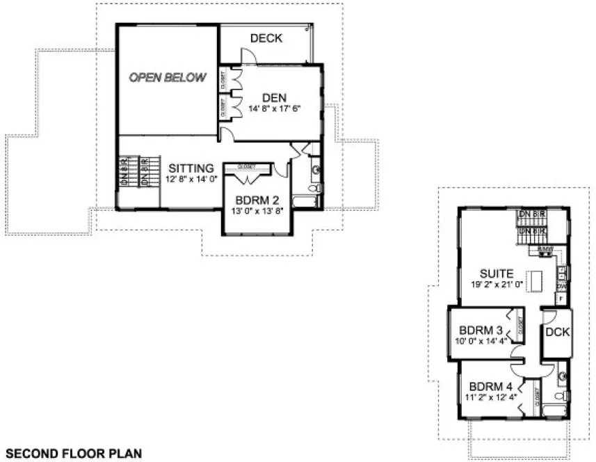
This beautiful contemporary country home features a two-storey ceiling in the great room with a balcony overlooking it from the second floor. The spacious master suite features a large walk-in-closet and a beautiful ensuite bathroom. The covered patio has an outdoor gas fireplace and pass-through folding window from the kitchen, making it perfect for entertaining. The three bay garage is connected by a covered walkway and includes an exercise room (160 Square feet )The suite over the Garage (which has a deck) is the Bonus area (894 Square feet including the stairwell). The Stairwell on the Garage level is an additional 111 Square feet. The Garage area of 881 Square feet includes the entry area.
Specifications
Total 4549 sq ft
- Main: 2417
- Second: 968
- Third: 0
- Loft/Bonus: 894
- Basement: 1578
- Garage: 881
Rooms
- Beds: 4
- Baths: 3
- 1/2 Bath: 1
- 3/4 Bath: 0
Ceiling Height
- Main: 9'0
- Second: 9'0
- Third:
- Loft/Bonus:
- Basement: 9'0
- Garage:
Details
- Exterior Walls: 2x6
- Garage Type: tripleGarage
- Width: 112'0
- Depth: 102'0
Roof
- Max Ridge Height: 28'8
- Comments: ()
- Primary Pitch: 4/12
- Secondary Pitch: 0/12
Add to Cart
Pricing
– westhomeplanners.com
– westhomeplanners.com
– westhomeplanners.com
– westhomeplanners.com
Rear Rendering – westhomeplanners.com
– westhomeplanners.com
– westhomeplanners.com
FRONT Elevation – westhomeplanners.com
REAR Elevation – westhomeplanners.com
[Back to Search Results]

833–493–0942







