Plan No.520107
Traditional Charm
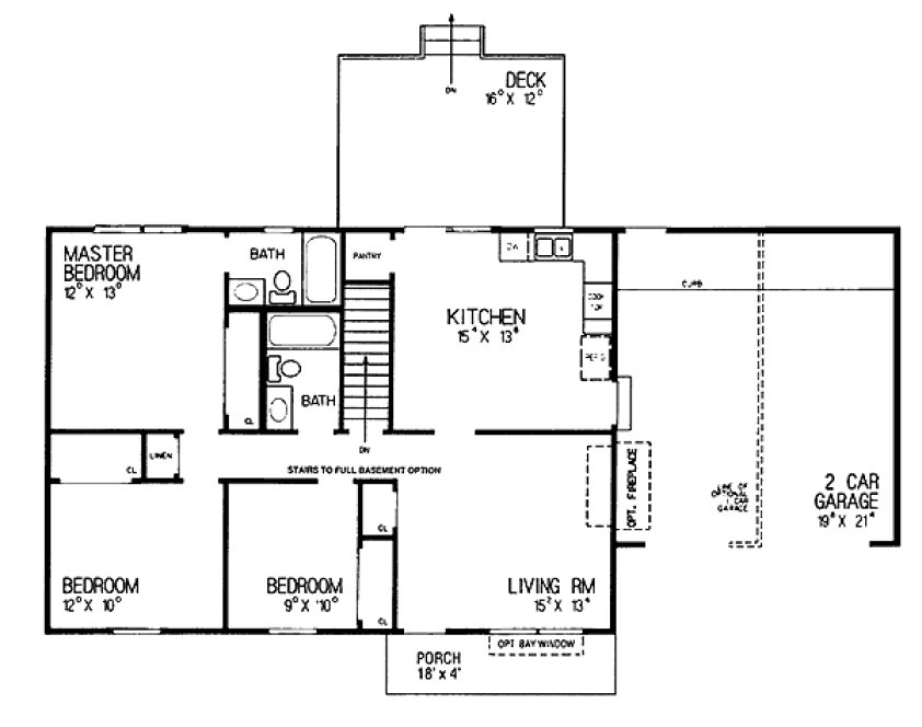
Traditional charm is an apt description for this economical ranch home. The master suite offers a full bath plus ample closet space. A full-sized bath adjoins the other two bedrooms. Options include a one- or two-car garage, a front porch, a rear deck with railing, a box-bay window, and a fireplace. The blueprints for this house include plans for both the basic and the enhanced versions.
Specifications
Total 1130 sq ft
- Main: 1130
- Second: 0
- Third: 0
- Loft/Bonus: 0
- Basement: 0
- Garage: 0
Rooms
- Beds: 3
- Baths: 2
- 1/2 Bath: 0
- 3/4 Bath: 0
Ceiling Height
- Main: 8'0
- Second:
- Third:
- Loft/Bonus:
- Basement:
- Garage:
Details
- Exterior Walls: 2x4
- Garage Type: doubleGarage
- Width: 60'0
- Depth: 28'0
Roof
- Max Ridge Height: 17'0
- Comments: ()
- Primary Pitch: 6/12
- Secondary Pitch: 0/12
Add to Cart
Pricing
– westhomeplanners.com
– westhomeplanners.com
View without Garage – westhomeplanners.com
– westhomeplanners.com
[Back to Search Results]

833–493–0942


