Plan No.313721
Timber Details & Outdoor Living
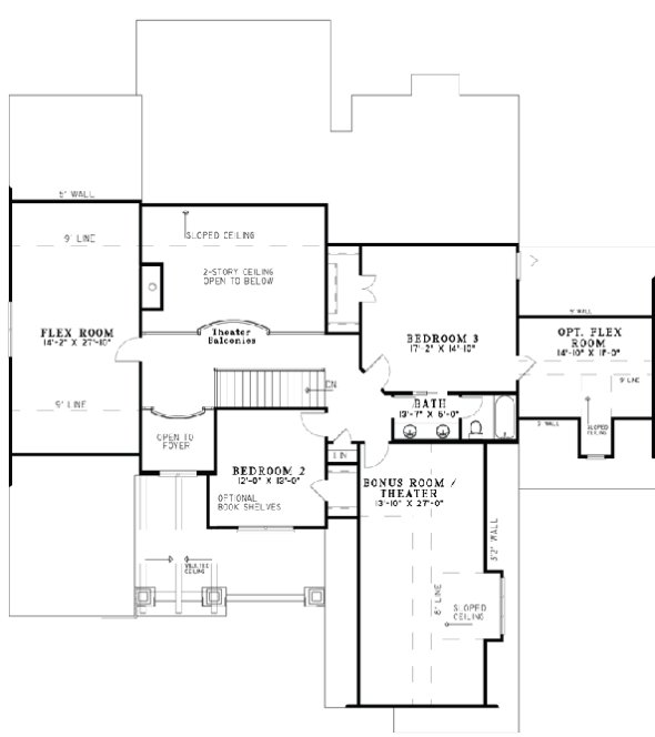
The impressive timber detailing highlight the rustic feel of this split bedroom plan. Featuring a fireplace in the open great room, one in the hearth room which is open to the kitchen, and one out back on the outdoor living/grilling porch. The master suite features a private access to the grilling porch while the master bath offers a large corner whirlpool tub and glass shower, double vanities, and a large walk-in closest. Bedrooms 2 and 3 are located upstairs with walk-in closets. And there?s also a huge flex room, an optional flex room, and a huge bonus room, home theater.
Specifications
Total 3600 sq ft
- Main: 2351
- Second: 1249
- Third: 0
- Loft/Bonus: 629
- Basement: 0
- Garage: 0
Rooms
- Beds: 4
- Baths: 3
- 1/2 Bath: 0
- 3/4 Bath: 0
Ceiling Height
- Main: 9'0
- Second: 9'0
- Third:
- Loft/Bonus: 8'0
- Basement:
- Garage:
Details
- Exterior Walls: 2x4
- Garage Type: tripleGarage
- Width: 72'0
- Depth: 80'0
Roof
- Max Ridge Height: 33'0
- Comments: (Main Fl to Peak)
- Primary Pitch: 0/12
- Secondary Pitch: 0/12
Add to Cart
Pricing
– westhomeplanners.com
– westhomeplanners.com
– westhomeplanners.com
– westhomeplanners.com
– westhomeplanners.com
– westhomeplanners.com
[Back to Search Results]

833–493–0942




