Plan No.310338
Glorious Waterfront Plan
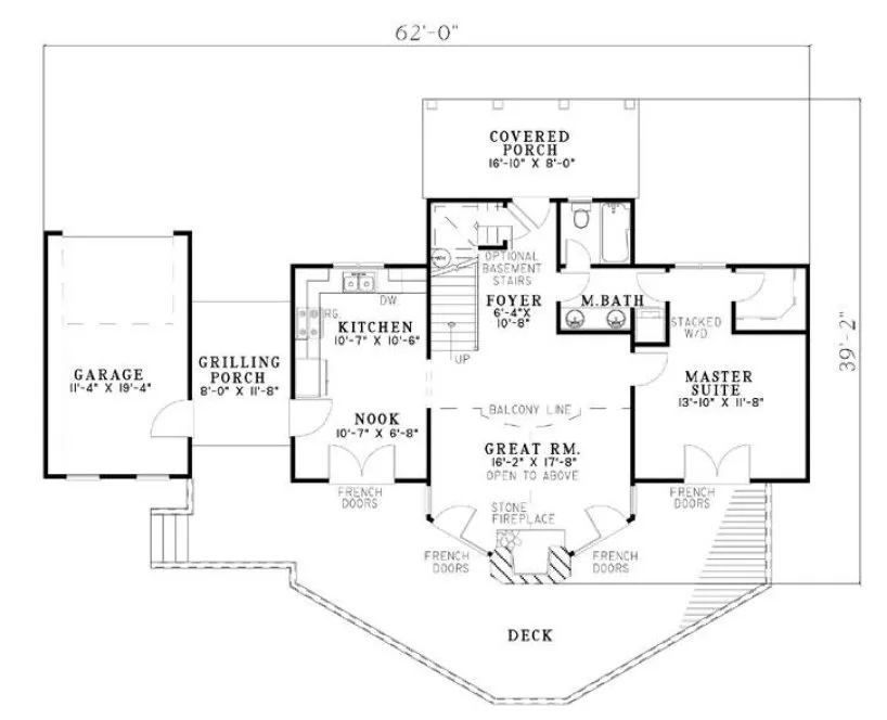
This glorious waterfront plan is perfect for summers of entertaining and cozy winters with family and friends. Upon entry, you?ll have a direct view of the great room with a rock fireplace centered among a full wall of windows and French doors leading to the rear deck. The kitchen has a quaint breakfast nook with French doors and a nearby covered grilling porch for entertaining. For privacy, the master suite is located on the main level and has a laundry area in the master bathroom for added convenience. Travel upstairs to find a spacious loft area centered between a bathroom and bedroom while enjoying a breathtaking view from the balcony.
Specifications
Total 1408 sq ft
- Main: 917
- Second: 491
- Third: 0
- Loft/Bonus: 0
- Basement: 0
- Garage: 240
Rooms
- Beds: 2
- Baths: 2
- 1/2 Bath: 0
- 3/4 Bath: 0
Ceiling Height
- Main: 8'0
- Second: 8'0
- Third:
- Loft/Bonus:
- Basement:
- Garage:
Details
- Exterior Walls: 2x4
- Garage Type: singleGarage
- Width: 62'0
- Depth: 39'2
Roof
- Max Ridge Height: 27'0
- Comments: ()
- Primary Pitch: 12/12
- Secondary Pitch: 0/12
Add to Cart
Pricing
– westhomeplanners.com
– westhomeplanners.com
– westhomeplanners.com
Exterior Elevations – westhomeplanners.com
[Back to Search Results]

833–493–0942


