Plan No.522263
Modern-Day Camelot
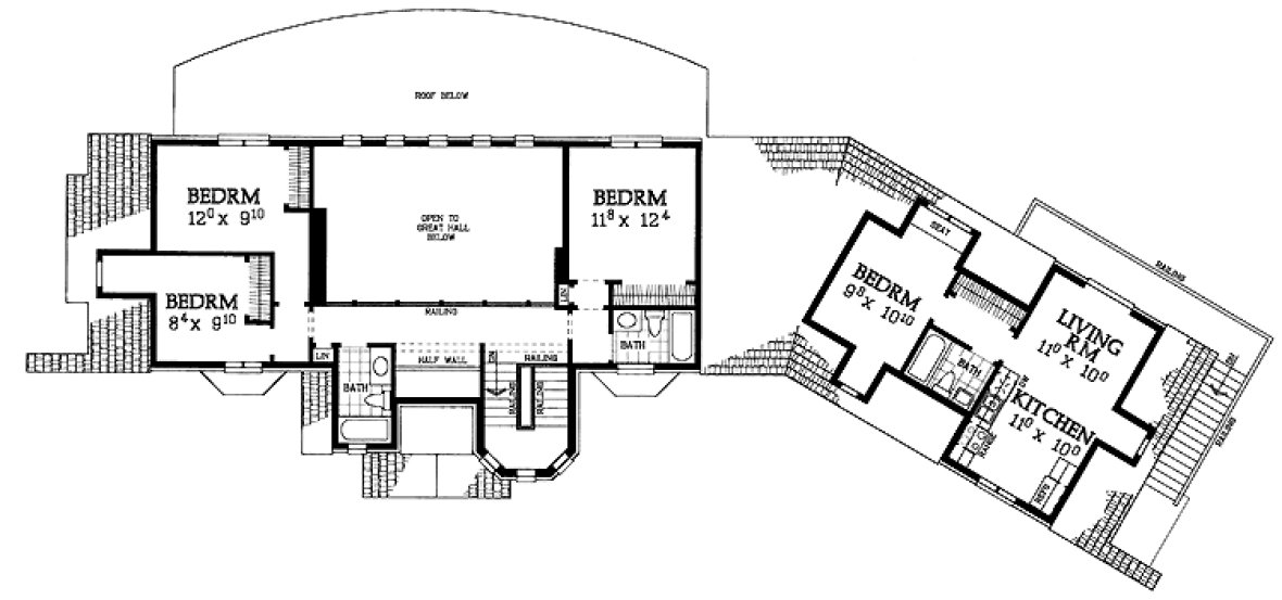
Be the owner of your own country estate--this two-story home gives the look and feel of grand-style living without the expense of large square footage. The entry leads to a massive foyer and great hall. There's space enough here for living and dining areas.Two window seats in the great hall overlook the rear veranda. One fireplace warms the living area, while another looks through the dining room to the kitchen and breakfast nook. A screened porch offers casual dining space for warm weather. The master suite has another fireplace and window seat and adjoins a luxurious master bath with separate tub and shower. A separate apartment over the garage includes its own living room, kitchen, and bedroom.
Specifications
Total 2403 sq ft
- Main: 1566
- Second: 837
- Third: 0
- Loft/Bonus: 506
- Basement: 0
- Garage: 0
Rooms
- Beds: 4
- Baths: 3
- 1/2 Bath: 1
- 3/4 Bath: 0
Ceiling Height
- Main: 9'0
- Second: 8'0
- Third:
- Loft/Bonus: 8'0
- Basement:
- Garage:
Details
- Exterior Walls: 2x6
- Garage Type: doubleGarage
- Width: 116'0
- Depth: 55'0
Roof
- Max Ridge Height: 31'0
- Comments: ()
- Primary Pitch: 12/12
- Secondary Pitch: 15/12
Add to Cart
Pricing
– westhomeplanners.com
– westhomeplanners.com
– westhomeplanners.com
– westhomeplanners.com
[Back to Search Results]

833–493–0942


