Plan No.175973
Large Deck
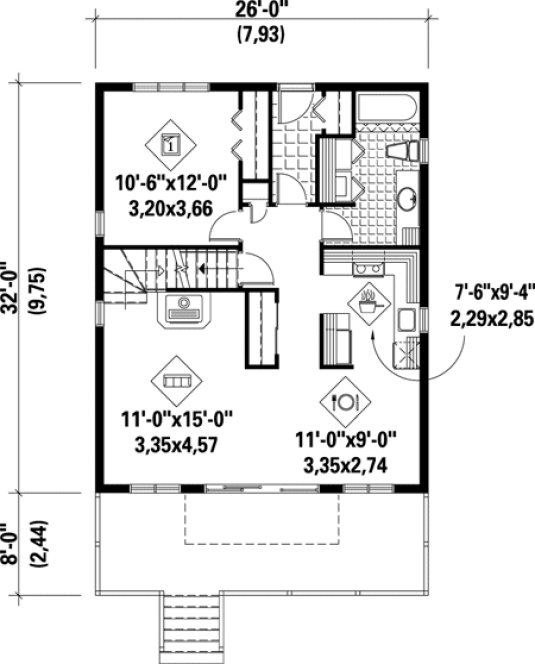
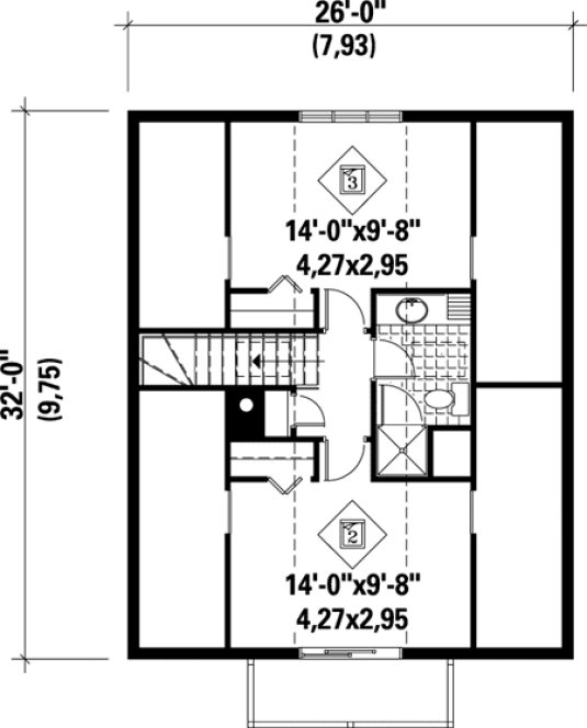
There's nothing better to enjoy the outdoors than this lovely cottage with its large deck. The house is 26 feet wide by 32 feet deep and provides 1,286 square feet of living space. The ground floor has an 832 square foot living area and includes a living room with a fireplace and an open dining room, a kitchen, a bathroom and a bedroom. The second floor covers 454 square feet and has a spacious bathroom and two bedrooms, including a master bedroom with a large patio door.
Specifications
Total 1286 sq ft
- Main: 832
- Second: 454
- Third: 0
- Loft/Bonus: 0
- Basement: 0
- Garage: 0
Rooms
- Beds: 3
- Baths: 1
- 1/2 Bath: 0
- 3/4 Bath: 1
Ceiling Height
- Main: 8'0
- Second: 8'0
- Third:
- Loft/Bonus:
- Basement:
- Garage:
Details
- Exterior Walls: 2x6
- Garage Type:
- Width: 26'0
- Depth: 32'0
Roof
- Max Ridge Height: 25'10
- Comments: (Main Fl to Peak)
- Primary Pitch: 0/12
- Secondary Pitch: 0/12
Add to Cart
Pricing
– westhomeplanners.com
– westhomeplanners.com
– westhomeplanners.com
– westhomeplanners.com
[Back to Search Results]

833–493–0942


