Plan No.172026
Lakeside Cottage
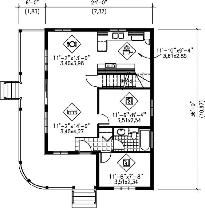
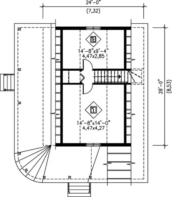
Thanks to the decorative moldings and the large veranda, this superb cottage will blend harmoniously in the scenery, whether by a lake or surrounded by mountains. The house is 24 feet wide by 36 feet deep and provides 1,211 square feet of living space. The ground floor covers 722 square feet and includes a kitchen, an open living and dining area, a bathroom and two bedrooms. With 439 square feet, the second floor includes two bedrooms with cathedral ceilings.
Specifications
Total 1211 sq ft
- Main: 772
- Second: 439
- Third: 0
- Loft/Bonus: 0
- Basement: 0
- Garage: 0
Rooms
- Beds: 4
- Baths: 1
- 1/2 Bath: 0
- 3/4 Bath: 0
Ceiling Height
- Main: 8'0
- Second: 8'0
- Third:
- Loft/Bonus:
- Basement:
- Garage:
Details
- Exterior Walls: 2x6
- Garage Type:
- Width: 24'0
- Depth: 36'0
Roof
- Max Ridge Height: 27'0
- Comments: ()
- Primary Pitch: 12/12
- Secondary Pitch: 0/12
Add to Cart
Pricing
– westhomeplanners.com
– westhomeplanners.com
– westhomeplanners.com
3D Main Floor – westhomeplanners.com
3D Second Floor – westhomeplanners.com
– westhomeplanners.com
[Back to Search Results]

833–493–0942




