Plan No.171061
Lovely Country-Style Bungalow
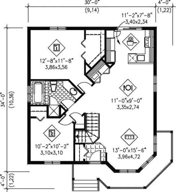
This lovely country-style bungalow will charm anyone with its pretty architectural details and large corner veranda. The house is 30 feet wide by 34 feet deep and provides 974 square feet of living space. The home has two bedrooms including a master bedroom with a large walk-in closet, a bathroom, a kitchen, and an open dining and living area.
Specifications
Total 974 sq ft
- Main: 974
- Second: 0
- Third: 0
- Loft/Bonus: 0
- Basement: 974
- Garage: 0
Rooms
- Beds: 2
- Baths: 1
- 1/2 Bath: 0
- 3/4 Bath: 0
Ceiling Height
- Main: 8'0
- Second:
- Third:
- Loft/Bonus:
- Basement: 8'0
- Garage:
Details
- Exterior Walls: 2x6
- Garage Type:
- Width: 30'0
- Depth: 34'0
Roof
- Max Ridge Height: 24'0
- Comments: ()
- Primary Pitch: 0/12
- Secondary Pitch: 0/12
Add to Cart
Pricing
– westhomeplanners.com
– westhomeplanners.com
3D Floor Plan – westhomeplanners.com
– westhomeplanners.com
[Back to Search Results]

833–493–0942


