Plan No.171641
Eye-catching Bungalow
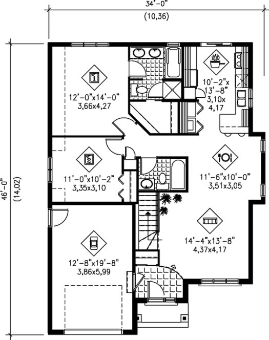
This bungalow will catch the eye with its lovely front porch, its gables and large transom window. The house is 34 feet wide by 46 feet deep and provides 1,100 square feet of living space in addition to a 274 square foot one-car garage. The home features nine-foot ceilings. It has a living room, a dining room, a kitchen with a laundry area, a family bathroom, two bedrooms with slanted ceilings including a master bedroom with a large walk-in closet and a private bathroom.
Specifications
Total 1100 sq ft
- Main: 1100
- Second: 0
- Third: 0
- Loft/Bonus: 0
- Basement: 1100
- Garage: 0
Rooms
- Beds: 2
- Baths: 2
- 1/2 Bath: 0
- 3/4 Bath: 0
Ceiling Height
- Main: 9'0
- Second:
- Third:
- Loft/Bonus:
- Basement: 8'0
- Garage:
Details
- Exterior Walls: 2x6
- Garage Type: singleGarage
- Width: 34'0
- Depth: 46'0
Roof
- Max Ridge Height: 28'0
- Comments: (Main Floor to Peak)
- Primary Pitch: 0/12
- Secondary Pitch: 0/12
Add to Cart
Pricing
– westhomeplanners.com
– westhomeplanners.com
3D Floor Plan – westhomeplanners.com
– westhomeplanners.com
[Back to Search Results]

833–493–0942


