Plan No.354241
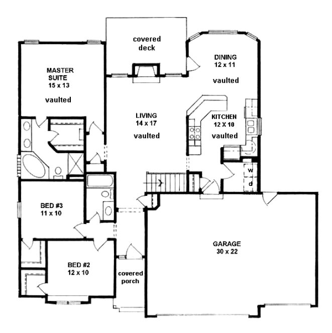
Vaulted Ceilings: Dining & MBR. 9'Ceilings: Living Room & Kitchen.
Specifications
Total 1424 sq ft
- Main: 1424
- Second: 0
- Third: 0
- Loft/Bonus: 0
- Basement: 1290
- Garage: 0
Rooms
- Beds: 3
- Baths: 2
- 1/2 Bath: 0
- 3/4 Bath: 0
Ceiling Height
- Main: 8'0
- Second:
- Third:
- Loft/Bonus:
- Basement: 8'0
- Garage:
Details
- Exterior Walls: 2x4
- Garage Type: 3 Car Garage
- Width: 52'0
- Depth: 50'0
Roof
- Max Ridge Height:
- Comments: ()
- Primary Pitch: 5/12
- Secondary Pitch: 0/12
Add to Cart
Pricing
– westhomeplanners.com
– westhomeplanners.com
– westhomeplanners.com
[Back to Search Results]

833–493–0942

