Plan No.521541
Soaring Views
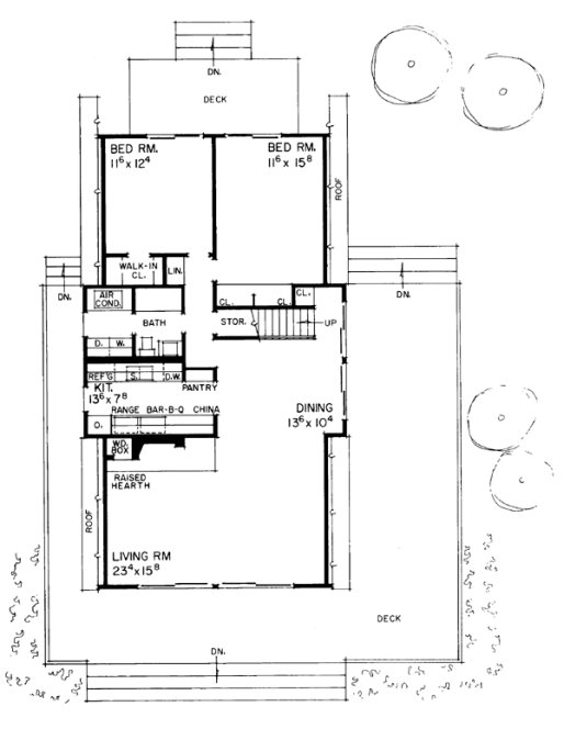
The soaring roof and the large glass area of this A-frame home put it in a class all its own. Raised wood decks on all sides provide delightful outdoor living areas. The living room is the focal point of the interior. It features a warming fireplace and large glass areas. A balcony outside the second-floor master bedroom affords magnificent views. The lounge on this level allows a sweeping overlook to the living room below. Two secondary bedrooms complete this plan.
Specifications
Total 1688 sq ft
- Main: 1224
- Second: 464
- Third: 0
- Loft/Bonus: 0
- Basement: 0
- Garage: 0
Rooms
- Beds: 3
- Baths: 2
- 1/2 Bath: 0
- 3/4 Bath: 0
Ceiling Height
- Main: 8'0
- Second:
- Third:
- Loft/Bonus:
- Basement:
- Garage:
Details
- Exterior Walls: 2x4
- Garage Type:
- Width: 44'0
- Depth: 49'0
Roof
- Max Ridge Height: 27'0
- Comments: ()
- Primary Pitch: 0/12
- Secondary Pitch: 0/12
Add to Cart
Pricing
– westhomeplanners.com
– westhomeplanners.com
– westhomeplanners.com
– westhomeplanners.com
[Back to Search Results]

833–493–0942


