Plan No.521604
Perfect Vacation Home
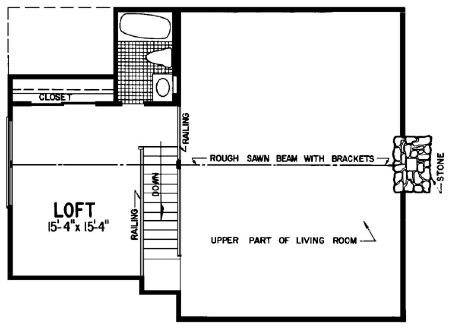
This charming farmhouse design will be economical to build and a pleasure to occupy. Like most vacation homes, this design features an open plan. The large living area includes a living room, a dining room, and a massive stone fireplace. A partition separates the kitchen from the living room. The first floor also holds a bedroom, a full bath, and a laundry room. Upstairs, a spacious sleeping loft overlooks the living room. Don't miss the large front porch--this will be a favorite spot for relaxing.
Specifications
Total 1309 sq ft
- Main: 1036
- Second: 273
- Third: 0
- Loft/Bonus: 0
- Basement: 0
- Garage: 0
Rooms
- Beds: 2
- Baths: 2
- 1/2 Bath: 0
- 3/4 Bath: 0
Ceiling Height
- Main: 8'0
- Second: 8'0
- Third:
- Loft/Bonus:
- Basement:
- Garage:
Details
- Exterior Walls: 2x4
- Garage Type:
- Width: 39'0"
- Depth: 38'0
Roof
- Max Ridge Height: 22'0
- Comments: (Main Fl to Peak)
- Primary Pitch: 9/12
- Secondary Pitch: 0/12
Add to Cart
Pricing
– westhomeplanners.com
– westhomeplanners.com
– westhomeplanners.com
– westhomeplanners.com
[Back to Search Results]

833–493–0942


