Plan No.146423
Graceful Arches
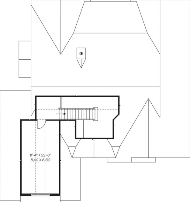
While rendered with a southern look, this model is popular nation-wide due to the easy living style on one level. A gracefully arched, covered entry opens to a dramatic vaulted foyer. An airiness is achieved by 9’ ceilings throughout, plus a vaulted dining and living room. A three sided fireplace links the kitchen, dining room and living room. Grocery shopping is a breeze with an attached, two-car garage being mere steps from car to kitchen. All of the main living areas, plus a covered deck are oriented to the back of the house - perfect for privacy and backyard enjoyment. The private master suite includes a 5-fixture bathroom and walk-in closet. Two additional bedrooms share a bathroom. The garage provides a golf cart bay with its own door and a sloped bonus room above the garage provides additional space for a unique room or storage. Features distinctive elements such as a 9' ceiling throughout the main level except the laudry room to 8', sloped ceiling to the entry until 17' and at 11' in the dining room and the living room. Central three-sided fireplace shared with the kitchen, dining room and living room. Dinette area enhanced with abundant window. Garage providing space for the golf cart as well as its own door. Bonus room above garage with sloped ceiling.
Specifications
Total 1816 sq ft
- Main: 1816
- Second: 0
- Third: 0
- Loft/Bonus: 330
- Basement: 0
- Garage: 557
Rooms
- Beds: 3
- Baths: 2
- 1/2 Bath: 0
- 3/4 Bath: 0
Ceiling Height
- Main: 9'0
- Second:
- Third:
- Loft/Bonus:
- Basement:
- Garage:
Details
- Exterior Walls: 2x6
- Garage Type: doubleGarage
- Width: 54'8
- Depth: 57'8
Roof
- Max Ridge Height: 22'6
- Comments: (Top of Foundation to Peak)
- Primary Pitch: 6/12
- Secondary Pitch: 0/12

833–493–0942


