Plan No.510923
Affordable Chalet Design
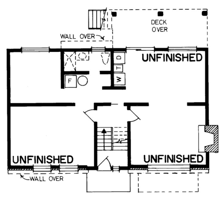
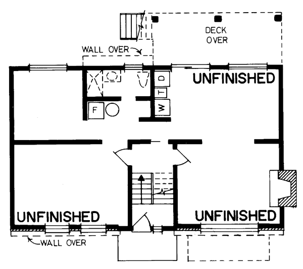
This affordable chalet design has additional space for future expansion. The unfinished lower level, with fireplace and rough-in plumbing, provides 986 square feet for a family room, bedrooms, or whatever your family needs. The entry steps up to a living room with balcony and fireplace and back to the dining area and U-shaped kitchen. Sliding glass doors in the dining room open to the rear deck. Three bedrooms sit on the left side of the plan and include a master bedroom with private bath and two family bedrooms sharing a full bath.
Specifications
Total 1102 sq ft
- Main: 1102
- Second: 0
- Third: 0
- Loft/Bonus: 0
- Basement: 1050
- Garage: 0
Rooms
- Beds: 3
- Baths: 2
- 1/2 Bath: 0
- 3/4 Bath: 0
Ceiling Height
- Main: 8'0
- Second:
- Third:
- Loft/Bonus:
- Basement: 8'0
- Garage:
Details
- Exterior Walls: 2x6
- Garage Type:
- Width: 42'0
- Depth: 28'0
Roof
- Max Ridge Height: 27'0
- Comments: (Foyer Level to Peak)
- Primary Pitch: 5/12
- Secondary Pitch: 0/12
Add to Cart
Pricing
Full Rendering – westhomeplanners.com
MAIN Plan – westhomeplanners.com
BASEMENT Plan – westhomeplanners.com
[Back to Search Results]

833–493–0942

