Plan No.143494
Specifications
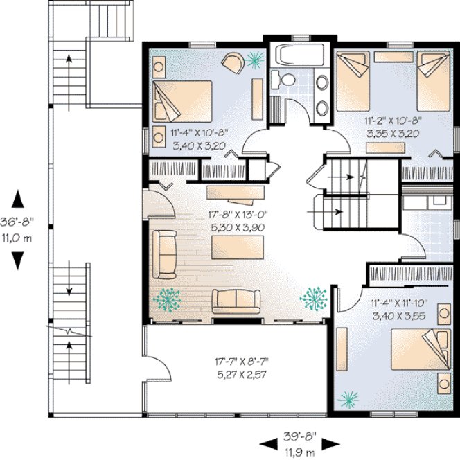
Total 2392 sq ft
- Main: 0
- Second: 967
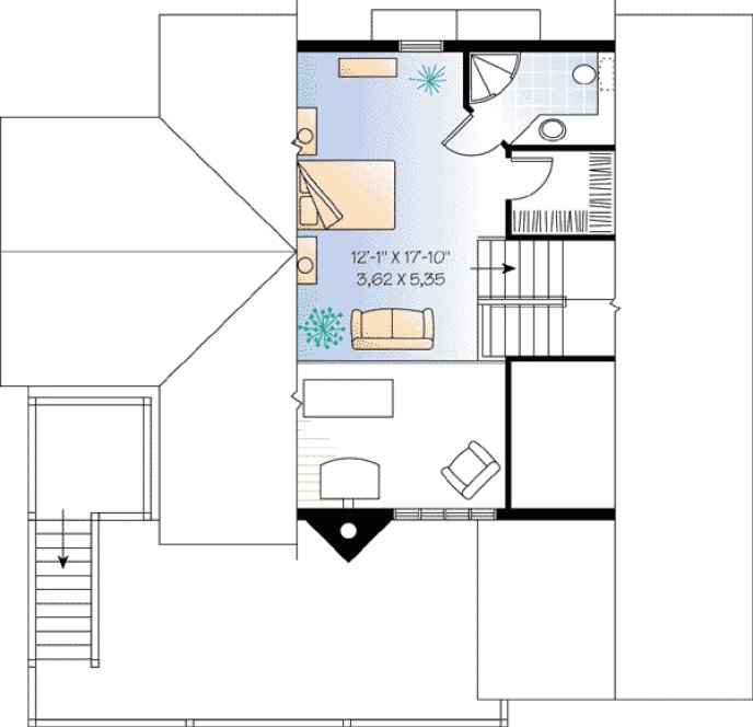
- Third: 1076
- Loft/Bonus: 349
- Basement: 0
- Garage: 0
Rooms
- Beds: 5
- Baths: 3
- 1/2 Bath: 1
- 3/4 Bath: 0
Ceiling Height
- Main:
- Second: 8'0
- Third: 8'0
- Loft/Bonus:
- Basement:
- Garage:
Details
- Exterior Walls: 2x6
- Garage Type:
- Width: 39'8
- Depth: 36'8
Roof
- Max Ridge Height: 40'5
- Comments: (Top of Foundation to Peak)
- Primary Pitch: 0/12
- Secondary Pitch: 0/12
Add to Cart
Pricing
– westhomeplanners.com
– westhomeplanners.com
– westhomeplanners.com
– westhomeplanners.com
– westhomeplanners.com
[Back to Search Results]

833–493–0942



