Plan No.195308
Simple Design
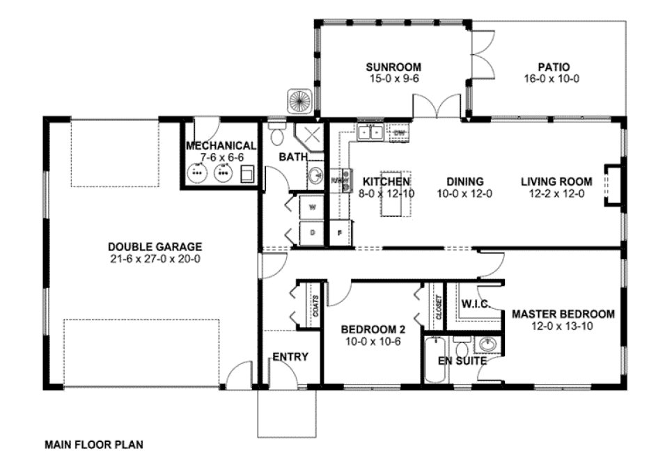
This two bedroom home features an open living area, a sunroom, an optional rear overhead door for boat storage, as well as an en suite and walk-in closet for the master. The sunroom adds an additional 160 square feet.
Specifications
Total 1123 sq ft
- Main: 1123
- Second: 0
- Third: 0
- Loft/Bonus: 160
- Basement: 0
- Garage: 557
Rooms
- Beds: 2
- Baths: 2
- 1/2 Bath: 0
- 3/4 Bath: 0
Ceiling Height
- Main: 9'0
- Second:
- Third:
- Loft/Bonus:
- Basement:
- Garage: 9'4
Details
- Exterior Walls: 2x6
- Garage Type: doubleGarage
- Width: 60'0
- Depth: 43'0
Roof
- Max Ridge Height: 16'0
- Comments: ()
- Primary Pitch: 4/12
- Secondary Pitch: 0/12
Add to Cart
Pricing
– westhomeplanners.com
– westhomeplanners.com
– westhomeplanners.com
– westhomeplanners.com
– westhomeplanners.com
[Back to Search Results]

833–493–0942



