Plan No.174322
Specifications
Total 2711 sq ft
- Main: 1192
- Second: 952
- Third: 567
- Loft/Bonus: 0
- Basement: 0
- Garage: 0
Rooms
- Beds: 3
- Baths: 3
- 1/2 Bath: 1
- 3/4 Bath: 0
Ceiling Height
- Main:
- Second:
- Third:
- Loft/Bonus:
- Basement:
- Garage:
Details
- Exterior Walls: 2x6
- Garage Type:
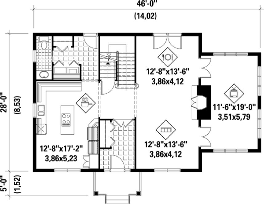
- Width: 46'0
- Depth: 28'0
Roof
- Max Ridge Height: 34'0
- Comments: ()
- Primary Pitch: 0/12
- Secondary Pitch: 0/12
Add to Cart
Pricing
– westhomeplanners.com
– westhomeplanners.com
– westhomeplanners.com
– westhomeplanners.com
Main Floor 3D – westhomeplanners.com
Second Floor 3D – westhomeplanners.com
Attic Floor 3D – westhomeplanners.com
– westhomeplanners.com
[Back to Search Results]

833–493–0942






