Plan No.172121
Ultra Modern
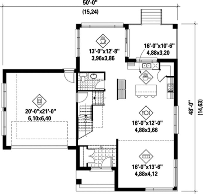
This large ultra modern two-storey house is characterized by huge windows, a brick and stone facing, and horizontal wooden siding. It is 50 feet wide by 48 feet deep and offers 2,453 square feet of living space. The home also has a 483 square foot two-car garage.
Specifications
Total 2453 sq ft
- Main: 1186
- Second: 1267
- Third: 0
- Loft/Bonus: 0
- Basement: 0
- Garage: 0
Rooms
- Beds: 3
- Baths: 2
- 1/2 Bath: 1
- 3/4 Bath: 0
Ceiling Height
- Main:
- Second:
- Third:
- Loft/Bonus:
- Basement:
- Garage:
Details
- Exterior Walls: 2x6
- Garage Type: doubleGarage
- Width: 50'0
- Depth: 48'0
Roof
- Max Ridge Height: 29'5
- Comments: ()
- Primary Pitch: 0/12
- Secondary Pitch: 0/12
Add to Cart
Pricing
– westhomeplanners.com
– westhomeplanners.com
– westhomeplanners.com
[Back to Search Results]

833–493–0942

