Plan No.177422
Warm Yourself in the Sunroom
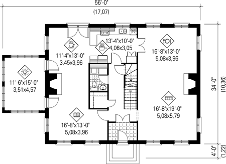
This home focuses on the family with a variety of living spaces for all to enjoy. On the main floor, the family living spaces are to the left, while the more formal areas are to the right. Upstairs there are three spacious bedrooms with ample closet space. the Master Suite features His & Her Closets and a well-appointed ensuite Bath.
Specifications
Total 2976 sq ft
- Main: 1688
- Second: 1288
- Third: 0
- Loft/Bonus: 0
- Basement: 1688
- Garage: 0
Rooms
- Beds: 3
- Baths: 2
- 1/2 Bath: 1
- 3/4 Bath: 0
Ceiling Height
- Main:
- Second:
- Third:
- Loft/Bonus:
- Basement:
- Garage:
Details
- Exterior Walls: 2x6
- Garage Type:
- Width: 56'0
- Depth: 34'0
Roof
- Max Ridge Height:
- Comments: ()
- Primary Pitch: 0/12
- Secondary Pitch: 0/12
Add to Cart
Pricing
Full Rendering – westhomeplanners.com
MAIN Plan – westhomeplanners.com
SECOND Plan – westhomeplanners.com
Second Floor 3D – westhomeplanners.com
Main Floor 3D – westhomeplanners.com
REAR Elevation – westhomeplanners.com
[Back to Search Results]

833–493–0942




