Plan No.179002
Elegant Country-Style Home
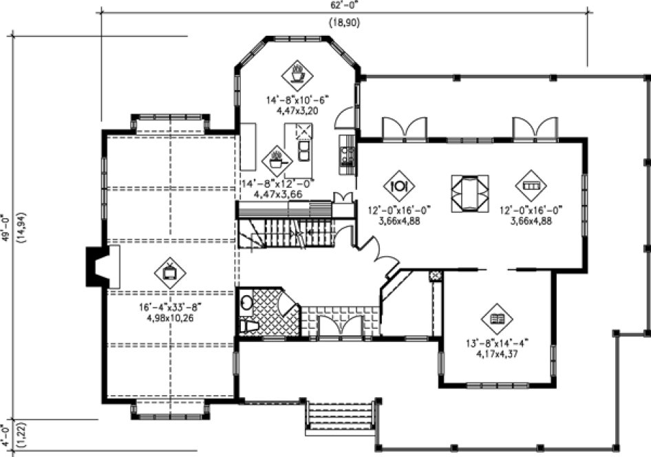
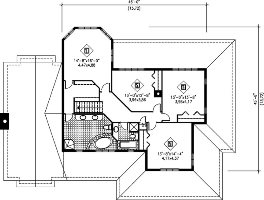
This charming country-style house is elegant, comfortable and spacious. The home is 62 feet wide by 49 feet deep and has a 3,475 square feet living area. The roomy 2,057 square feet ground floor includes a huge den with a fireplace, a powder room, a reading room, a large kitchen with breakfast nook, as well as an open living room and a dining room divided by a two-sided fireplace positioned in the middle of the room. The second floor has a 1,418 square feet living area and includes a bathroom and four bedrooms one of which is a master bedroom with a large walk-in closet and a private bathroom.
Specifications
Total 3475 sq ft
- Main: 2057
- Second: 1418
- Third: 0
- Loft/Bonus: 0
- Basement: 2057
- Garage: 0
Rooms
- Beds: 4
- Baths: 2
- 1/2 Bath: 1
- 3/4 Bath: 0
Ceiling Height
- Main:
- Second:
- Third:
- Loft/Bonus:
- Basement:
- Garage:
Details
- Exterior Walls: 2x6
- Garage Type:
- Width: 62'0
- Depth: 49'0
Roof
- Max Ridge Height: 37'0
- Comments: ()
- Primary Pitch: 0/12
- Secondary Pitch: 0/12
Add to Cart
Pricing
– westhomeplanners.com
– westhomeplanners.com
– westhomeplanners.com
Main Floor 3D – westhomeplanners.com
Second Floor 3D – westhomeplanners.com
– westhomeplanners.com
[Back to Search Results]

833–493–0942




