Plan No.510104
Long & Low Rancher
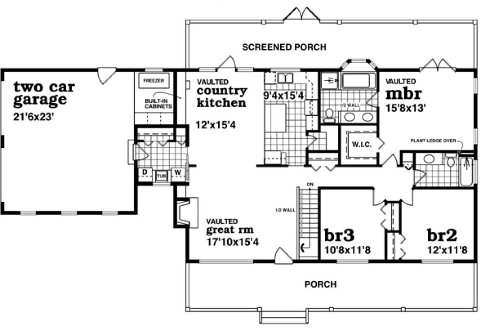
This long, low ranch home has outdoor living on two porches--one to the front and one to the rear. Vaulted ceilings in the great room, kitchen, and master bedroom add a dimension of extra space. A fireplace warms the great room, which opens to the country kitchen. The fine master suite also has doors to the rear porch and is graced by a walk-in closet, plus a full bath with a garden tub and dual-bowl vanity. The two-car garage contains space for a freezer and extra built-in storage cabinets.
Specifications
Total 1652 sq ft
- Main: 1652
- Second: 0
- Third: 0
- Loft/Bonus: 0
- Basement: 1652
- Garage: 0
Rooms
- Beds: 3
- Baths: 2
- 1/2 Bath: 0
- 3/4 Bath: 0
Ceiling Height
- Main: 9'0
- Second:
- Third:
- Loft/Bonus:
- Basement: 8'0
- Garage:
Details
- Exterior Walls: 2x6
- Garage Type: doubleGarage
- Width: 79'0
- Depth: 48'0
Roof
- Max Ridge Height: 24'0
- Comments: ()
- Primary Pitch: 9/12
- Secondary Pitch: 0/12
Add to Cart
Pricing
– westhomeplanners.com
– westhomeplanners.com
– westhomeplanners.com
[Back to Search Results]

833–493–0942

