Plan No.510690
Expansive Sundeck
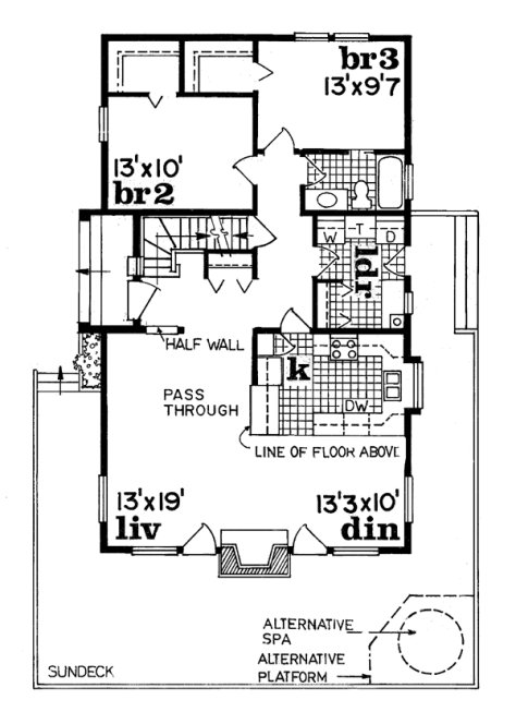
An expansive sun deck with an optional spa wraps around this design to highlight outdoor living. Tall windows accent the living and dining rooms' vaulted ceiling. Both areas are warmed by a central fireplace flanked by doors to the deck. A U-shaped kitchen is open to the dining room. Two bedrooms with walk-in closets sit to the back of the first floor. They share the use of a full bath. The owners suite dominates the upper level and has a full bath and large wall closet. Note the laundry room and side entries on the first floor.
Specifications
Total 1778 sq ft
- Main: 1235
- Second: 543
- Third: 0
- Loft/Bonus: 0
- Basement: 1235
- Garage: 0
Rooms
- Beds: 3
- Baths: 2
- 1/2 Bath: 0
- 3/4 Bath: 0
Ceiling Height
- Main: 8'0
- Second: 8'0
- Third:
- Loft/Bonus:
- Basement: 8'0
- Garage:
Details
- Exterior Walls: 2x6
- Garage Type:
- Width: 30'0
- Depth: 46'0
Roof
- Max Ridge Height: 26'0
- Comments: (Main Fl to Peak)
- Primary Pitch: 12/12
- Secondary Pitch: 0/12
Add to Cart
Pricing
– westhomeplanners.com
– westhomeplanners.com
– westhomeplanners.com
[Back to Search Results]

833–493–0942

