Plan No.594291
Ski-in Chalet
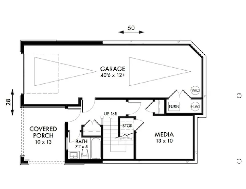
"Ski-in Chalet" A great 3-story craftsman walk-up house plan, ideal for the ski hill. 3 bedroom plus den and 3.5 baths with ski-in / ski-out boot room. Nice, open plan on the main with 2-car garage and media / flex room on the lower level. Note: 50 foot building depth includes covered "ski-in" and 31'-2" building height is measured from ridge to average grade.
Specifications
Total 1924 sq ft
- Main: 806
- Second: 723
- Third: 0
- Loft/Bonus: 0
- Basement: 395
- Garage: 558
Rooms
- Beds: 3
- Baths: 3
- 1/2 Bath: 1
- 3/4 Bath: 0
Ceiling Height
- Main: 9'0
- Second: 8'0
- Third:
- Loft/Bonus:
- Basement: 8'9
- Garage:
Details
- Exterior Walls: 2x6
- Garage Type:
- Width: 28'0
- Depth: 50'0
Roof
- Max Ridge Height: 31'2
- Comments: ()
- Primary Pitch: 7/12
- Secondary Pitch: 0/12
Add to Cart
Pricing
– westhomeplanners.com
– westhomeplanners.com
– westhomeplanners.com
– westhomeplanners.com
– westhomeplanners.com
– westhomeplanners.com
– westhomeplanners.com
FRONT Elevation – westhomeplanners.com
[Back to Search Results]

833–493–0942






