Plan No.179126
Beautiful Cottage
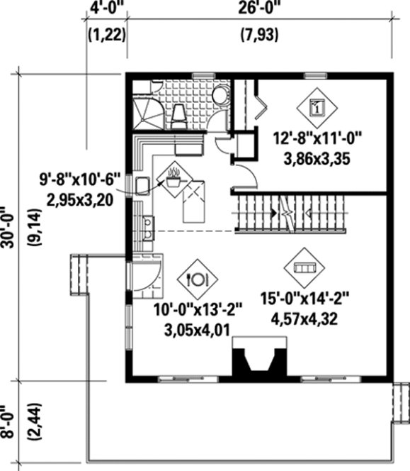
This beautiful cottage is ideally suited for a lakefront or mountaintop location. The house is 26 feet wide by 30 feet deep and provides 1,906 square feet of living space. The 780 square foot basement includes a large den with fireplace, a bedroom, a bathroom and a laundry room.
Specifications
Total 1906 sq ft
- Main: 780
- Second: 346
- Third: 0
- Loft/Bonus: 0
- Basement: 780
- Garage: 0
Rooms
- Beds: 2
- Baths: 2
- 1/2 Bath: 0
- 3/4 Bath: 0
Ceiling Height
- Main:
- Second:
- Third:
- Loft/Bonus:
- Basement:
- Garage:
Details
- Exterior Walls: 2x6
- Garage Type:
- Width: 26'0
- Depth: 30'0
Roof
- Max Ridge Height: 35'8
- Comments: ()
- Primary Pitch: 12/12
- Secondary Pitch: 0/12
Add to Cart
Pricing
– westhomeplanners.com
– westhomeplanners.com
– westhomeplanners.com
– westhomeplanners.com
Kitchen – westhomeplanners.com
Livingroom – westhomeplanners.com
Dining & Livingroom – westhomeplanners.com
Loft Bedroom – westhomeplanners.com
Master Bedroom – westhomeplanners.com
Bathroom – westhomeplanners.com
Basement Family Rm – westhomeplanners.com
– westhomeplanners.com
[Back to Search Results]

833–493–0942










