Plan No.176731
Charming Bungalow
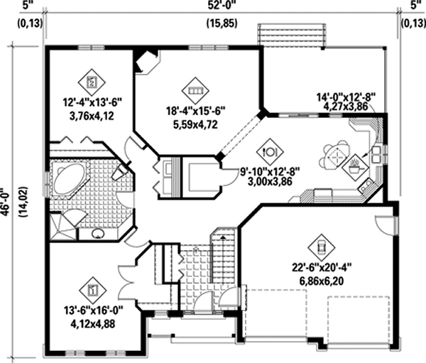
This charming bungalow is 52 feet wide by 46 feet deep and has a living area of 1,566 square feet. It includes two bedrooms, a bathroom, a living room with fireplace, a kitchen located next to an open dining room as well as a 471 square feet two-car garage.
Specifications
Total 1566 sq ft
- Main: 1566
- Second: 0
- Third: 0
- Loft/Bonus: 0
- Basement: 1566
- Garage: 471
Rooms
- Beds: 2
- Baths: 1
- 1/2 Bath: 0
- 3/4 Bath: 0
Ceiling Height
- Main:
- Second:
- Third:
- Loft/Bonus:
- Basement:
- Garage:
Details
- Exterior Walls: 2x6
- Garage Type: doubleGarage
- Width: 52'0
- Depth: 46'0
Roof
- Max Ridge Height: 28'6
- Comments: ()
- Primary Pitch: 0/12
- Secondary Pitch: 0/12
Add to Cart
Pricing
Full Rendering – westhomeplanners.com
3D Floor Plan – westhomeplanners.com
MAIN Plan – westhomeplanners.com
Front Photo – westhomeplanners.com
Br 2 – westhomeplanners.com
Dining & Kitchen – westhomeplanners.com
Family Bath – westhomeplanners.com
Livingroom – westhomeplanners.com
Master Bedroom – westhomeplanners.com
REAR Elevation – westhomeplanners.com
[Back to Search Results]

833–493–0942








