Plan No.510013
Marvelous Curb Appeal
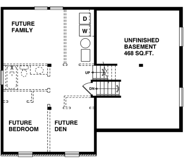
Craftsman styling and a welcoming porch create marvelous curb appeal for this design. A volume ceiling covering the living room, dining room, and kitchen makes this home feel larger than its modest square footage. The master bedroom offers a walk-in closet, a full bath, and a bumped-out window overlooking the rear yard. Two additional bedrooms also boast bumped-out windows and share a full bath.
Specifications
Total 1108 sq ft
- Main: 1108
- Second: 0
- Third: 0
- Loft/Bonus: 0
- Basement: 1108
- Garage: 0
Rooms
- Beds: 3
- Baths: 2
- 1/2 Bath: 0
- 3/4 Bath: 0
Ceiling Height
- Main: 8'0
- Second:
- Third:
- Loft/Bonus:
- Basement: 8'0
- Garage:
Details
- Exterior Walls: 2x6
- Garage Type:
- Width: 38'0
- Depth: 31'0
Roof
- Max Ridge Height: 21'0
- Comments: (Main Fl to Peak)
- Primary Pitch: 7/12
- Secondary Pitch: 0/12
Add to Cart
Pricing
– westhomeplanners.com
– westhomeplanners.com
– westhomeplanners.com
– westhomeplanners.com
– westhomeplanners.com
– westhomeplanners.com
[Back to Search Results]

833–493–0942




