Plan No.510303
What A Combination
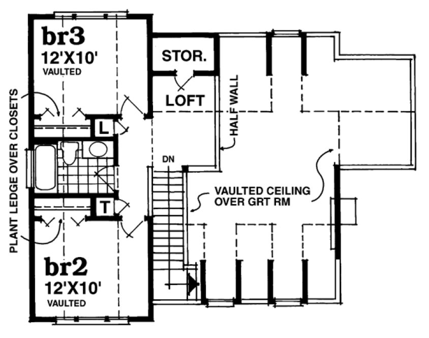
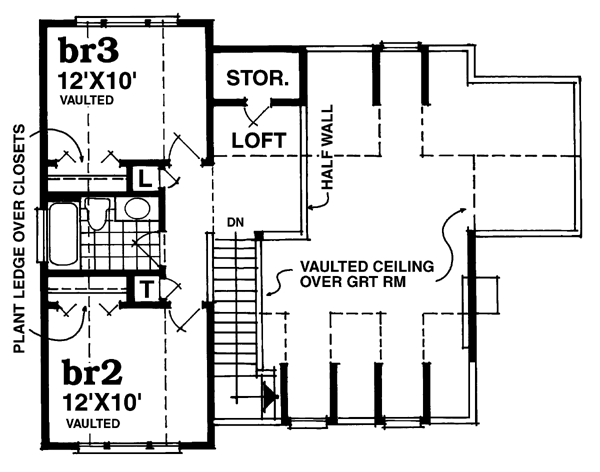
Now here's an example of smart planning! With just 1,583 square feet, this home fits in modern open living spaces and three bedrooms. The charming exterior boasts a wraparound railed porch and rear deck, which expand living space for outdoor entertaining. Vaulted ceilings throughout the dining area and great room add spaciousness; a fireplace warms the latter. Completely open, the kitchen offers an island with snack-bar seating for two. Double doors on either end bring abundant fresh air and light into the dining area. The master suite resides conveniently on the first floor and offers a spacious bedroom, roomy walk-in closet, and a private bath with a garden tub, separate shower, and dual sinks. The laundry room sits just a few steps away in the hallway, making washing day easy; just open the back door here to let in breezes and speed air-drying for delicate clothing. Two additional bedrooms, each with a vaulted ceiling, share a full bath upstairs. Note the loft area and extra storage space.
Specifications
Total 1583 sq ft
- Main: 1050
- Second: 533
- Third: 0
- Loft/Bonus: 0
- Basement: 1050
- Garage: 0
Rooms
- Beds: 3
- Baths: 2
- 1/2 Bath: 0
- 3/4 Bath: 0
Ceiling Height
- Main: 9'0
- Second: 8'0
- Third:
- Loft/Bonus:
- Basement: 8'0
- Garage:
Details
- Exterior Walls: 2x6
- Garage Type:
- Width: 42'0
- Depth: 38'0
Roof
- Max Ridge Height: 28'0
- Comments: (Main Fl to Peak)
- Primary Pitch: 12/12
- Secondary Pitch: 0/12

833–493–0942


