Plan No.420187
Specifications
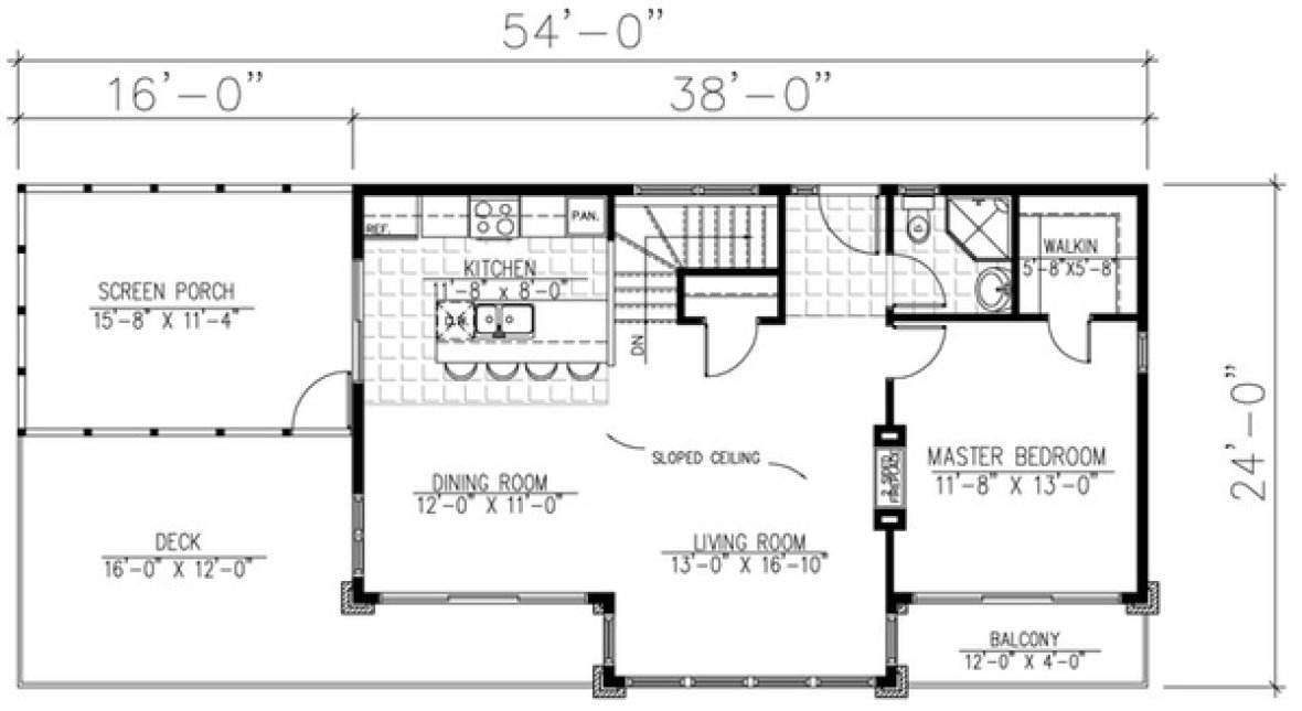
Total 1576 sq ft
- Main: 816
- Second: 0
- Third: 0
- Loft/Bonus: 0
- Basement: 760
- Garage: 0
Rooms
- Beds: 3
- Baths: 2
- 1/2 Bath: 0
- 3/4 Bath: 0
Ceiling Height
- Main: 8'0
- Second:
- Third:
- Loft/Bonus:
- Basement: 8'0
- Garage:
Details
- Exterior Walls: 2x6
- Garage Type: doubleCarport
- Width: 54'0
- Depth: 24'0
Roof
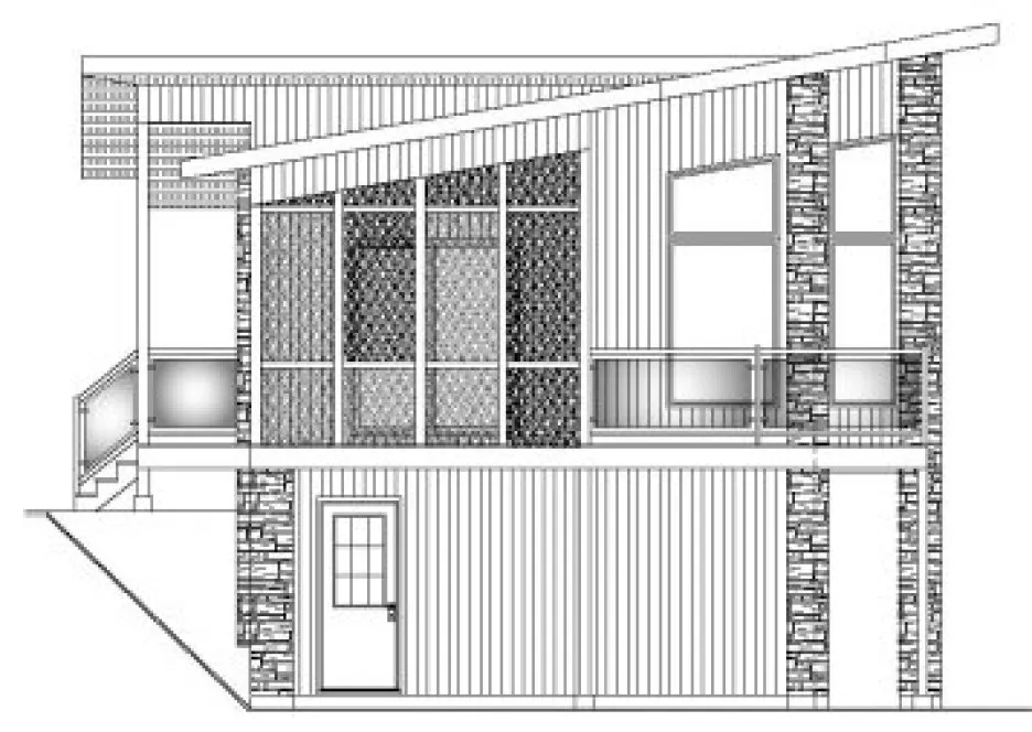
- Max Ridge Height: 17'4
- Comments: (Fin. Grade to Peak)
- Primary Pitch: 2/12
- Secondary Pitch: 0/12
Add to Cart
Pricing
– westhomeplanners.com
– westhomeplanners.com
– westhomeplanners.com
– westhomeplanners.com
– westhomeplanners.com
Front Rendering – westhomeplanners.com
FRONT Elevation – westhomeplanners.com
[Back to Search Results]

833–493–0942





