Plan No.269093
RV Garage Combination
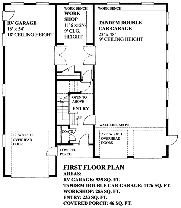
The RV garage portion of this combination garage has a eighteen foot high ceiling accessed though a sixteen foot high by twelve foot wide overhead door. The double car garage has a nine foot high ceiling with two eight foot high by nine foot wide overhead doors. The covered porch opens into the vaulted entry with direct access to the workshop. The workshop provides easy access to both the RV and double car garage areas. The vaulted second level is a blank canvas ready to be transformed into a future apartment, exercise room or private home office. Plans are designed with a concrete slab foundation plan.
Specifications
Total 3909 sq ft
- Main: 2629
- Second: 1280
- Third: 0
- Loft/Bonus: 0
- Basement: 0
- Garage: 0
Rooms
- Beds: 0
- Baths: 0
- 1/2 Bath: 0
- 3/4 Bath: 0
Ceiling Height
- Main: 8'0
- Second: 8'0
- Third:
- Loft/Bonus:
- Basement:
- Garage:
Details
- Exterior Walls: 2x6
- Garage Type:
- Width: 52'6
- Depth: 55'0
Roof
- Max Ridge Height: 29'6
- Comments: (Main Floor to Peak)
- Primary Pitch: 12/12
- Secondary Pitch: 5/12
Add to Cart
Pricing
– westhomeplanners.com
– westhomeplanners.com
– westhomeplanners.com
[Back to Search Results]

833–493–0942

