Plan No.594009
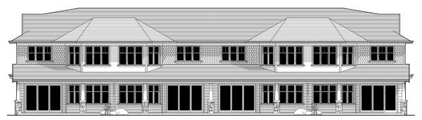
Elegant 4-unit Townhome
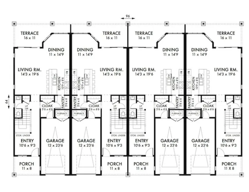
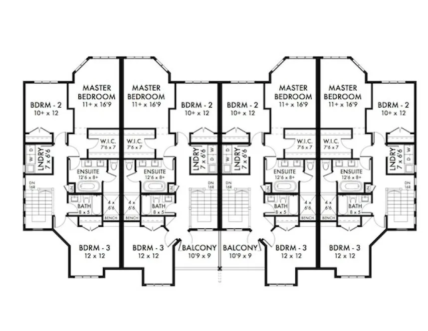
Each 1,995 square foot unit (969 sq. ft. main floor per unit plus 1026 sq. ft. on the second floor per unit) boasts open concept living, walk-through pantry, 3 bedrooms, 2.5 baths + entry / flex space, single car garage and private terrace. Generous master suites with full sized walk-in-closets, fully fitted 5-piece ensuite and convenient laundry facilities. Gorgeous windows and doors open up to the rear yard to maximize each unit's connection to the outdoors. Total finished area of building for all four units is 1995 sq. ft. x 4 = 7980 sq. ft.
Specifications
Total 7980 sq ft
- Main: 969
- Second: 1026
- Third: 0
- Loft/Bonus: 0
- Basement: 0
- Garage: 0
Rooms
- Beds: 3
- Baths: 2
- 1/2 Bath: 1
- 3/4 Bath: 0
Ceiling Height
- Main:
- Second:
- Third:
- Loft/Bonus:
- Basement:
- Garage:
Details
- Exterior Walls: 2x6
- Garage Type: singleGarage
- Width: 96'0
- Depth: 64'0
Roof
- Max Ridge Height: 26'7
- Comments: ()
- Primary Pitch: 7/12
- Secondary Pitch: 0/12
Add to Cart
Pricing
– westhomeplanners.com
– westhomeplanners.com
– westhomeplanners.com
– westhomeplanners.com
– westhomeplanners.com
– westhomeplanners.com
[Back to Search Results]

833–493–0942




