Plan No.521743
Western Farmhouse
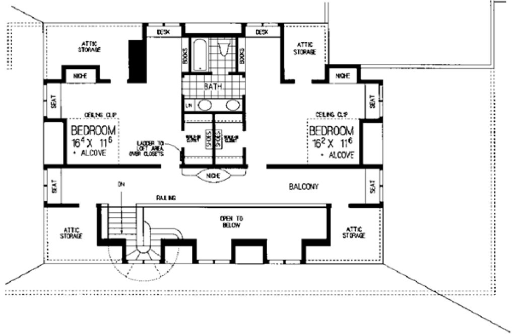
Western farmhouse style living is captured in this handsome design. The central entrance leads into a cozy parlor. Entertaining is a cinch with the dining room's built-in china alcove, service counter and fireplace. The country kitchen, with a large island cook top, overlooks the gathering room with its full wall of glass. The master bedroom will satisfy even the most discerning tastes. It boasts a raised hearth, porch access, a bath with a walk-in closet, separate vanities and a whirlpool tub. One may want to use one of the additional first floor bedrooms as a study, and the other as a guest room. To round out the first floor, there is a clutter room with a pantry, freezer space and access to storage space. Two family bedrooms and attic storage make up the second floor.
Specifications
Total 4051 sq ft
- Main: 3201
- Second: 950
- Third: 0
- Loft/Bonus: 0
- Basement: 0
- Garage: 0
Rooms
- Beds: 6
- Baths: 5
- 1/2 Bath: 0
- 3/4 Bath: 0
Ceiling Height
- Main: 8'0
- Second: 8'0
- Third:
- Loft/Bonus:
- Basement:
- Garage:
Details
- Exterior Walls: 2x6
- Garage Type: tripleGarage
- Width: 154'0
- Depth: 95'0
Roof
- Max Ridge Height: 28'0
- Comments: ()
- Primary Pitch: 7/12
- Secondary Pitch: 0/12

833–493–0942





