Plan No.528492
Adaptable Study
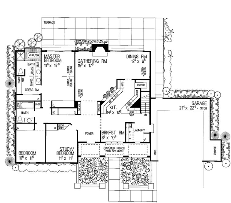
Styled for Southwest living, this home is a good choice in many areas. Among its many highlights are a gathering room/dining room combination that includes a fireplace, a snack-bar pass-through and sliding glass doors to the rear terrace. The uniquely shaped kitchen sports a walk-in pantry plus a breakfast room with windows to the front covered porch. Bedrooms include an owners suite with a sloped ceiling, access to the rear terrace, a whirlpool spa, and a double vanity. Two additional bedrooms share a full bath. One of these bedrooms makes a fine study and features built-in shelves for books as well as a built-in cabinet.
Specifications
Total 1830 sq ft
- Main: 1830
- Second: 0
- Third: 0
- Loft/Bonus: 0
- Basement: 0
- Garage: 0
Rooms
- Beds: 3
- Baths: 2
- 1/2 Bath: 0
- 3/4 Bath: 0
Ceiling Height
- Main:
- Second:
- Third:
- Loft/Bonus:
- Basement:
- Garage:
Details
- Exterior Walls: 2x6
- Garage Type: doubleGarage
- Width: 75'0
- Depth: 43'0
Roof
- Max Ridge Height:
- Comments: ()
- Primary Pitch: 0/12
- Secondary Pitch: 0/12
Add to Cart
Pricing
– westhomeplanners.com
– westhomeplanners.com
– westhomeplanners.com
[Back to Search Results]

833–493–0942

