Plan No.523942
Perfect for a Narrow Lot
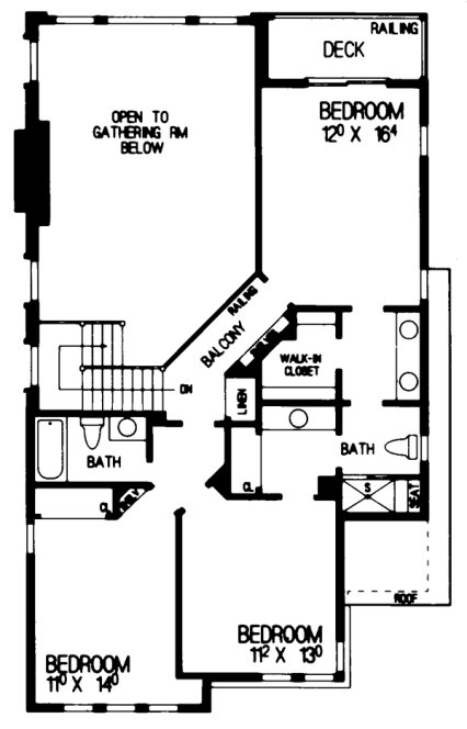
Perfect for a narrow lot, this shingle-and-stone Nantucket Cape home caters to the casual lifestyle. The side entrance gives direct access to the wonderfully open living areas: the gathering room with a fireplace and an abundance of windows; the island kitchen with an angled pass-through snack bar; and the dining area with sliding glass doors to a covered eating area. Note also the large terrace that further extends the living potential. Also on this floor is the large master suite with a compartmented bath, private dressing room, and walk-in closet. Upstairs you'll find the three family bedrooms. Of the two bedrooms with walk-in closets that share a private bath, one features a private deck.
Specifications
Total 2316 sq ft
- Main: 1387
- Second: 929
- Third: 0
- Loft/Bonus: 0
- Basement: 0
- Garage: 0
Rooms
- Beds: 4
- Baths: 3
- 1/2 Bath: 0
- 3/4 Bath: 0
Ceiling Height
- Main: 8'0
- Second: 8'0
- Third:
- Loft/Bonus:
- Basement:
- Garage:
Details
- Exterior Walls: 2x6
- Garage Type:
- Width: 30'0
- Depth: 51'8"
Roof
- Max Ridge Height: 31'0
- Comments: (Main Fl to Peak)
- Primary Pitch: 9/12
- Secondary Pitch: 0/12
Add to Cart
Pricing
– westhomeplanners.com
– westhomeplanners.com
– westhomeplanners.com
Front Photo – westhomeplanners.com
Rear Photo – westhomeplanners.com
– westhomeplanners.com
– westhomeplanners.com
– westhomeplanners.com
[Back to Search Results]

833–493–0942






