Plan No.596161
Cute Walk-out Bungalow
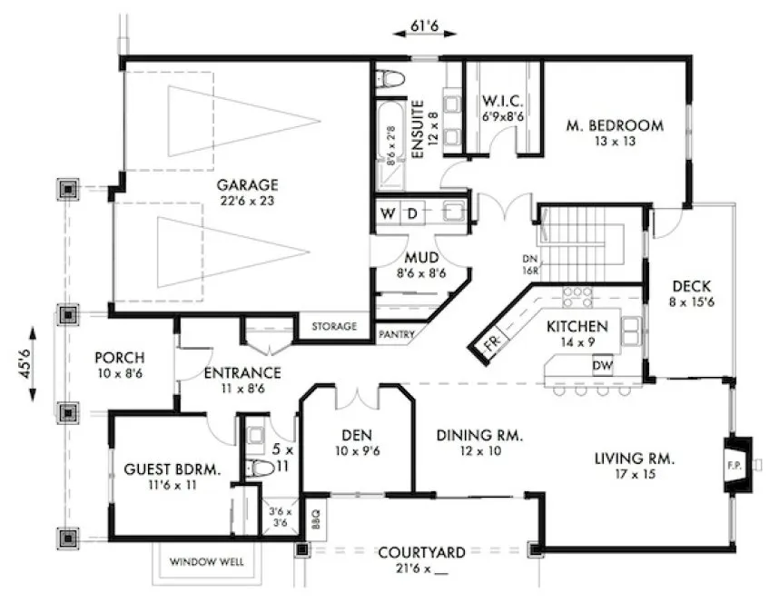
A charming heritage-style home with open-concept living. Master and guest bedrooms on the main floor + den. Take advantage of usable side-yard space with the partly covered courtyard for barbecuing and entertaining! Vaulted ceilings in living room and dining room + plenty of developable space in the basement.
Specifications
Total 1616 sq ft
- Main: 1616
- Second: 0
- Third: 0
- Loft/Bonus: 0
- Basement: 1126
- Garage: 571
Rooms
- Beds: 2
- Baths: 1
- 1/2 Bath: 0
- 3/4 Bath: 1
Ceiling Height
- Main: 9'0
- Second:
- Third:
- Loft/Bonus:
- Basement: 8'0
- Garage:
Details
- Exterior Walls: 2x6
- Garage Type:
- Width: 45'6
- Depth: 63'0
Roof
- Max Ridge Height: 29'4
- Comments: ()
- Primary Pitch: 7/12
- Secondary Pitch: 4/12
Add to Cart
Pricing
– westhomeplanners.com
– westhomeplanners.com
– westhomeplanners.com
– westhomeplanners.com
– westhomeplanners.com
– westhomeplanners.com
FRONT Elevation – westhomeplanners.com
[Back to Search Results]

833–493–0942





