Plan No.512700
Magnificent Verandah
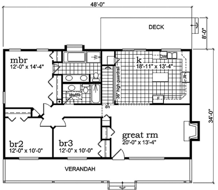
The most striking thing about this simple one-story home is the magnificent verandah that stretches across the entire front. A rear deck offers more outdoor living space. Inside, the master suite enjoys a private bath; two additional bedrooms share a bath. The great room is warmed by a fireplace, and the kitchen, with a convenient island counter and plenty of work space, is wide open to the dining area.
Specifications
Total 1344 sq ft
- Main: 1344
- Second: 0
- Third: 0
- Loft/Bonus: 0
- Basement: 0
- Garage: 0
Rooms
- Beds: 3
- Baths: 2
- 1/2 Bath: 0
- 3/4 Bath: 0
Ceiling Height
- Main: 8'0
- Second:
- Third:
- Loft/Bonus:
- Basement:
- Garage:
Details
- Exterior Walls: 2x6
- Garage Type:
- Width: 48'0
- Depth: 34'0
Roof
- Max Ridge Height: 20'0
- Comments: (Main Fl to Peak)
- Primary Pitch: 8/12
- Secondary Pitch: 0/12
Add to Cart
Pricing
– westhomeplanners.com
– westhomeplanners.com
[Back to Search Results]

833–493–0942
